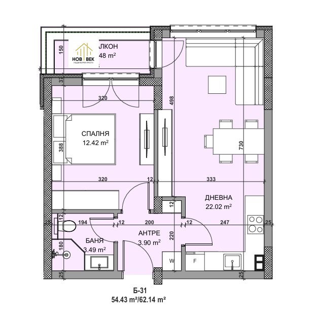
НАЙ-НИСКА ЦЕНА ЗА РАЙОНА! СГРАДА ПРЕД А14, РАЗПОЛОЖЕНА В НАЙ- ХУБАВАТА ЧАСТ НА КВАРТАЛ ВЛАДИСЛАВ ВАРНЕНЧИК! Агенция за недвижими имоти НОВ ВЕК, тел.: 0876777309, ви представя ЕКСКЛУЗИВЕН ПРОЕКТ, сграда VARNENCHIK 2&3 ! Имотът (А-36) е със североизточно изложение, с обща жилищна площ от 62.14 кв.м и чиста жилищна площ 54,43 м2.Състои се от: коридор, дневна с кухня и трапезария,спалня, балкон, баня с тоалетна. Към всеки имот ще бъдат включени съответните идеални части от общите части на сградата, както и от земята върху която ще бъде изграден обекта. Сградата ще бъде разположена под бул. 3-ти март, близо до магазини KAUFLAND и JUMBO. Новите собственици ще имат на разположение всичко необходимо на пешеходно разстояние. Магазини, аптеки, парк с алеи за разходка и обособени места за домашни любимци, спирка на градски транспорт с редовни линии до всички части на града, училища и детски градини, фитнес зала, банки, пазар, офиси на спедиторски компании и много други! ПРЕДИМСТВА НА СГРАДАТА: Функционални разпределения за максимален комфорт и уют на обитаване; Светли и просторни стаи с правилни форми, всяко жилище разполага с 1 или 2 сервизни помещения; Панорамна гледка към Варненското езеро и града; Качествено изпълнение до степен на завършеност БДС, подготвено за довършителни дейности; Възможност за обединение на апартаменти при нужда от по- голяма площ; БОНУСИ ПРИ ПОКУПКА НА ИМОТ В СГРАДАТА: Безплатна консултация с интериорен дизайнер; Отстъпка при поръчка на проект за интериорен дизайн; Отстъпка от материалите, необходими за довършителни работи; Отстъпка при поръчка на обзавеждане и оборудване; Опция за завършване до ключ.
тел.: 0876777309



