✨ Характеристики на апартамента:
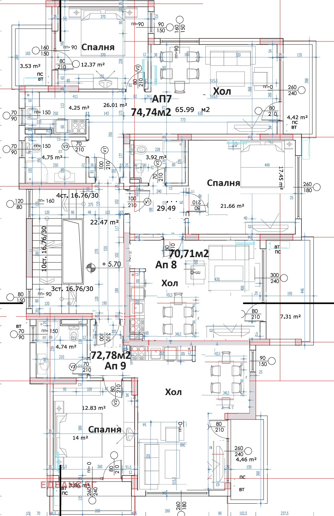
📦 Обща площ: 72,78 кв.м
🏢 Етаж: 3 от 5
🛏️ Разпределение: дневна с кухненски бокс и трапезария, спалня, баня с тоалетна, обслужващо помещение, тераса
🧭 Изложение: запад/юг/изток
🔑 Състояние: до ключ
🧾 Статус: Акт 16
📍 Локация:
Сградата се намира в тиха зона на Равда, с лесен достъп до морето, магазини и централната част на курорта. Перфектен избор за постоянно живеене или ваканционен имот.
Виж всички обяви в advanceestate.bazar.bg или тук
        
       
         
         
         
         
         
             
             
             
             
            






