Организация Фокус има удоволствието да ви представи двустаен апартамент в новострояща се сграда в квартал Беломорски, град Пловдив!
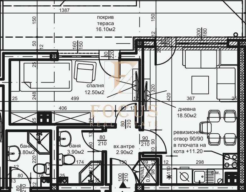
Апартаментът е с обща площ от 53,73 кв.м. със следното разпределение: антре, дневна с кухненски бокс, спалня, баня с тоалетна, склад и тераса - 16,10 кв.м.
Изложението на имота е северно.
Ситуиран на 4-ти последен етаж.
Кварталът е характерен с уютната и спокойната си обстановка. Наличието на зелени площи и паркове го правят подходящо място за живеене.
Сградата е само с 4 етажа, идеален избор за хора, търсещи тишина.
С възможност за закупуване на гаражи.
Очакван срок за експлоатация - 06.2027 г.
За повече информация и огледи, не се колебайте да се свържете с нас!
Референтен номер: 52014







