Революшън Естейт Ви представя двустаен апартамент в сграда ПРЕД АКТ 14 в ж.к. Люлин 6.
Локация: в близост до хипермаркет и голям спортен център, с бърза връзка с Околовръстен път.
Имотът е разположен на 4-ти жилищен етаж от общо 9.
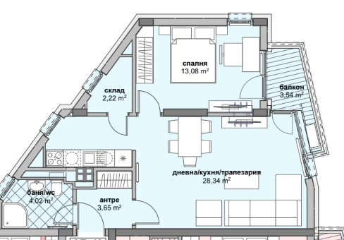
Площ: ЗП - 69.86 кв.м. РЗП - 81.87 кв.м.
Разпределение: входно антре, дневна с кухненски бокс, спалня, баня с тоалетна, склад и тераса.
Изложение: Изток/Запад/Север.
Степен на завършеност: ПРЕД АКТ 14.
Очаквано завършване: края на 2027г.
За повече информация не се колебайте да се свържете с нас и да цитирате референтен номер: 10108 в сграда с ID: 1021.







