Интерестейт предлага двустаен апартамент в завършена кооперация само на 300 метра от плажа. Сградата се намира в район с чисто нова инфраструктура, нови улици, улично осветление и парк с детски кът на 150 метра. Центърът на Сарафово е на 3-4 минути пеша, автобусната спирка - на същото разстояние, а супермаркетът - само на 2 минути.
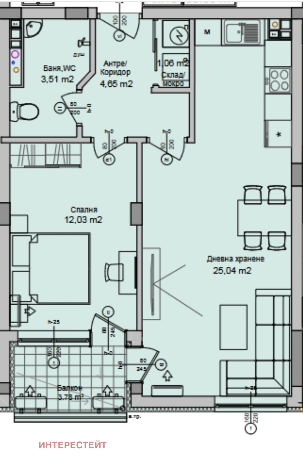
Жилището състои се от всекидневна с кухненски кът, спалня, тераса, антре, санитарен възел. Предлага се на тапа.
Разполагаме с двустайни и тристайни апартаменти в същата сграда







