Оферта 66737:
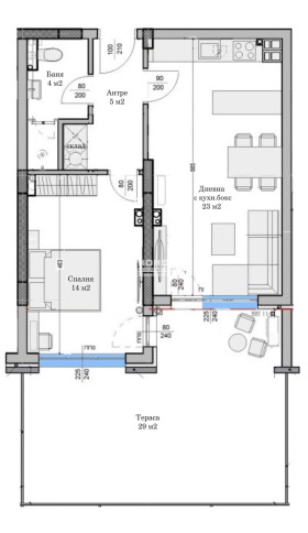
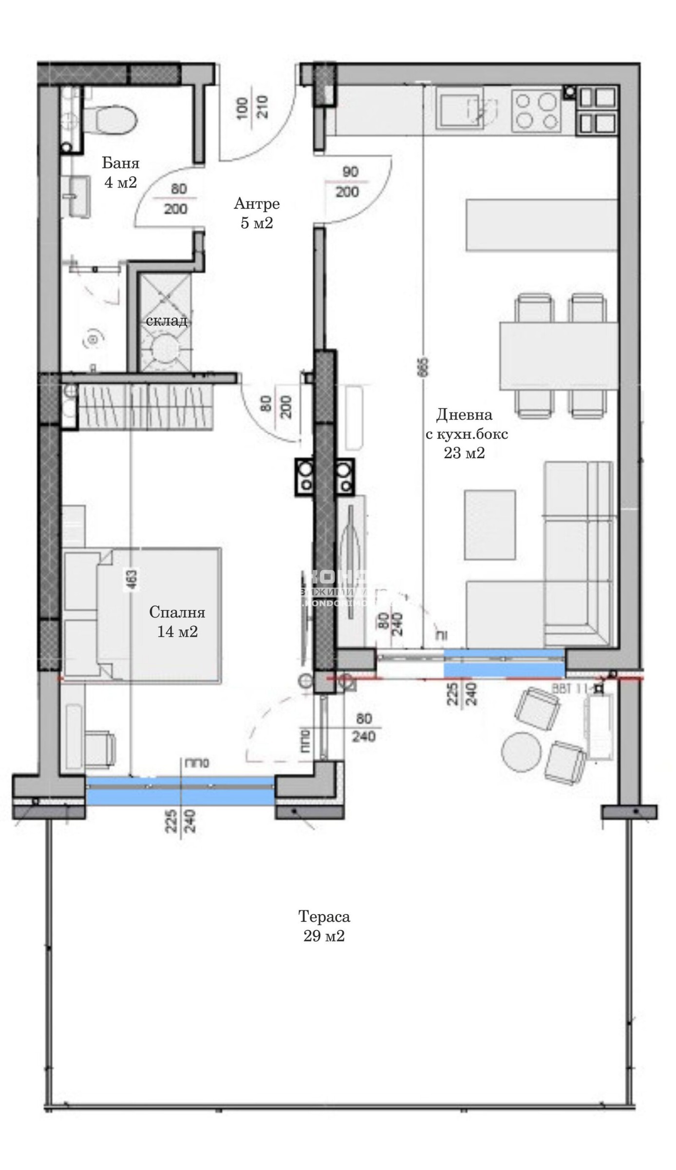
Предлагаме Ви функционален двустаен имот с перфектно разпределение в нова модерна сграда със собствен стил, изчистена визия, проектирана така, че да създаде максимален комфорт и уют за живеене. Проектът предвижда нискоетажно жилищно строителство, в съответна близост до основни комуникации в един от най-бързо развиващите се райони. Жилището се състои от дневна 23кв.м. с кухненски бокс, една самостоятелна спалня 14кв.м., входно антре, баня с тоалетна, склад и една голяма тераса 29кв.м. Сградата се изпълнява от една от водещите строителни компании, наложила се на пазара с множество готови обекти, изпълнени с изключително високо качество и прецизност. Възможност за разсрочено плащане в рамките на строителството , както и възможност за закупуване чрез Банков Кредит с изключително изгодни условия за клиенти на агенция Кондор !!! Приложените снимки в Галерия са от други готови сгради на същия Инвеститор !!! СВОБОДНИ ПОДЗЕМНИ ГАРАЖИ и ПАРКОМЕСТА !!!
ВИЖТЕ ОЩЕ ИЗГОДНИ ОФЕРТИ НА https://www.kondorimoti.com/ С ЕЖЕДНЕВНА АКТУАЛИЗАЦИЯ!







