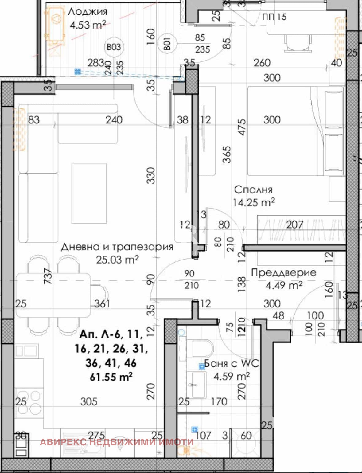
🏢 Тип: Двустаен апартамент
🏗️ Строителство: Ново строителство
🛠️ Етап: В строеж очаквано завършване пролетта на 2026 г.
📐 Квадратура: 76 кв.м
🪜 Етаж: 4
💶 Цена: 72 171
🛗 Асансьор: Да
🌇 Компактен и светъл двустаен апартамент в новострояща се сграда в кв. Южен. Отлична възможност за първи дом или инвестиция с потенциал за отдаване под наем!
Виж всички обяви в avirexplovdiv.bazar.bg или тук







