Отговорен брокер: Стефан Моллов
Ново жилище с атрактивна и удобна локация в Пловдив. В близост до комплекса има училище, детска градина, поликлиника и медицински център, магазини на Лидл, Кауфланд и Декатлон, ресторанти, кино, пазар и други. Сградата е с получен Акт 16 от 2023 г. В строителството са вложени само висококачествени материали на доказани производители.
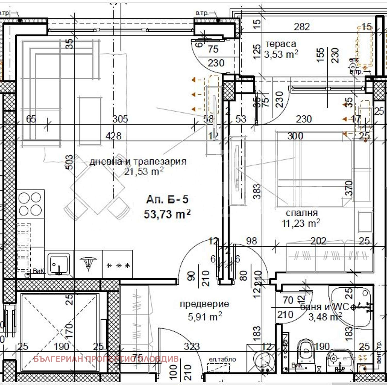
Имотът се намира на втори етаж с площ 62.36 м2 (чиста площ 53.73 м2 плюс общи части 8.63 м2) разпределена между:
антре
хол с кухненски бокс
спалня
баня с тоалетна
балкон
Жилището се предава без довършителни работи и обзавеждане:
Стени и таван - гипсова шпакловка; под - циментова замазка
Ел. Инсталации - до конзола
ВиК инсталации - на тапа
Вид дограма - PVC, 5-камерна
Вид външна и вътрешни врати - вътрешни интериорни врати MDF и външни топлоустойчиви врати
Вид изолация - тайтбонд
Отопление - климатици
Окабеляване за ТВ, Интернет, телефон
Към апартамента има изба с площ 3 кв. м.
Тракия е желан и търсен за живеене квартал, поради не гъстото си застрояване и отличната инфраструктура широки булеварди, пешеходни и вело алеи и паркове. Транспортната мрежа е много добре развита, осигуряваща бърз и лесен достъп до всички части на град Пловдив, а предвижването с кола до центъра на града отнема между 5 и 10 мин.
Оглед на имота
Можем да организираме оглед на имота спрямо нашия график и възможностите за достъп до него. Заявете вашето желание за оглед, като се свържете с отговорния за офертата брокер по имейл или телефон.
Резервация на имота
Имотът може да бъде резервиран и свален от продажба със заплащане на депозит, след което се прекратява провеждането на огледи с други купувачи и започва подготовка на документите за сключване на предварителен и окончателен договор. Свържете се с отговорния брокер за подробна информация относно процедурата на покупка и начините за плащане.
Жилищен кредит
Ние си партнираме с водещите български банки и можем да ви свържем с техните консултанти за информация и кандидатстване за кредит.
...
Виж всички обяви в plvbulprop.bazar.bg или тук
        
       
         
         
         
         
         
         
             
             
             
             
             
            






