Представяме двустаен апартамент с голям собствен двор, в нов комплекс от затворен тип с парк и стилна архитектурна визия, в кв. 'Малинова долина'.
ПРЕД АКТ 15!
Местоположението е комуникативно, в близост до ул. 'Проф. Крикор Азарян', която осигурява достъп до бул. 'Симеоновско шосе' и бул. 'Климент Охридски', а от там и до всички точки на столицата. На пешеходно разстояние се намират Зимния дворец на спорта, Национална Спортна Академия, парк 'Въртопо' и всички удобства на Студентски град.
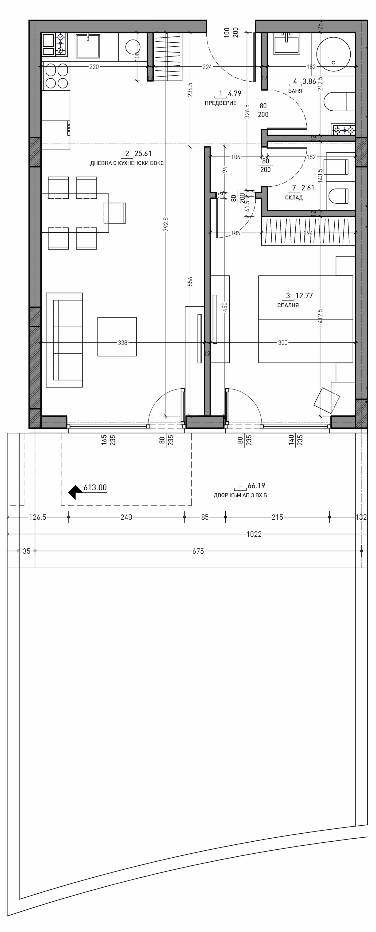
Имотът е ситуиран на 1-ви етаж от общо 4, ориентиран е на запад и предлага 69.10 кв.м обща площ.
Разпределение:
антре/коридор;
баня с тоалетна - 3.86 кв.м;
склад/мокро помещение - 2.61 кв.м;
спалня 12.77 кв.м;
дневна с кухня и трапезария - 25.61 кв.м;
двор от 66.19 кв.м.
Апартаментът се продава със стени с гипсова мазилка, подове с циментова мазилка, вътрешно основно окабеляване, Ел. и ВиК инсталации, луксозни входни врати.
За комплекса
Състои се от три 4-етажни сгради и собствен парк с площ 1 500 кв.м, с богато озеленяване и без автомобилен трафик, които ще осигурят на живущите спокойна атмосфера на живот. Апартаментите са с функционални разпределения и благоприятни изложения, като голяма част от тях предлагат гледки към Витоша.
Паркирането е решено с подземни гаражи, с опция за закупуването, на цени от 34 000 евро (66 498 лв.).
Технически характеристики:
конструкция - стоманобетонна, монолитна конструкция;
хидроизолационна система в целия сутерен, както и на тавани и тераси;
топлоизолация на фасадата - 12 см EPS с декоративна облицовка от системата Caparol Meldorfer (клинкерни тухли);
покривна изолация 12 см XPS;
общи части с настилки от гранитогрес във вид на естествен камък, тавани - гипсокартон с LED осветление;
асансьори - Orona;
металопластмасова 6-камерна дограма Deceuninck, троен стъклопакет;
домофонна система за контролиран достъп;
отопление на ток с предвидена ...
За повече информация свържете се с нас и цитирайте референтния номер на имота. Моля, кажете, че сте видeли обявата в този сайт.
Референтен номер: SOF-130199
Тел: 0889 005 714, 02 404 97 25
Отговорен брокер:Матин Ароу
Без комисиона от купувача
Виж всички обяви в luximmo.bazar.bg или тук







