Предлагаме двустаен апартамент с реална квадратура от 50 кв. м. .
Имота граничи с училище Алеко Константинов и предлага чудесна инвестиционна възможност !
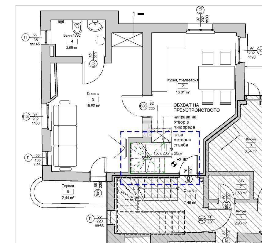
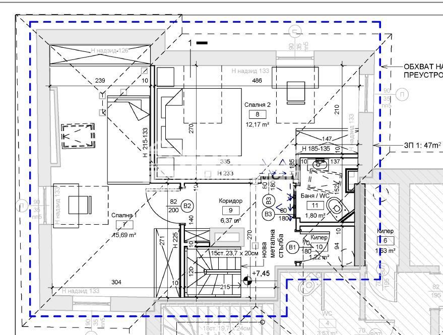
Състои се от кухненски бокс с трапезария, голяма спалня с тераса и санитарно помещение. Точно над жилището има таванско помещение около 50 кв. м. и стълба водеща към него от апартамента. Бонус - идеен проект за преустройство на покривното пространство! Тавана е в идеални части, но в процедура по реално разделяне
Към имота има идеални части от парцела !
В квадратура е добавено избено помещение с площ 12 кв. м.
Агенцията разполага с ключ и огледи са възможни всекидневно с предварителна уговорка.
ВИЖТЕ ОЩЕ ИЗГОДНИ ОФЕРТИ НА https://www.kondorimoti.com/ С ЕЖЕДНЕВНА АКТУАЛИЗАЦИЯ!
Виж всички обяви в kondor.bazar.bg или тук
        
       
         
         
         
         
         
         
         
         
         
         
             
             
             
             
             
             
             
             
             
            






