Открийте мястото, където ще се чувствате у дома от първия момент!
Агенция за недвижими имоти " Титан Пропъртис" предлага на Вашето внимание за продажба, Двустаен апартамент е в жк. Възраждане - БЕЗ КОМИСИОННА ОТ КУПУВАЧА.
Намира се в непосредствена близост до детска градина" Раковина" магазини, автобусни спирки, на крачки от ул. Александровска.
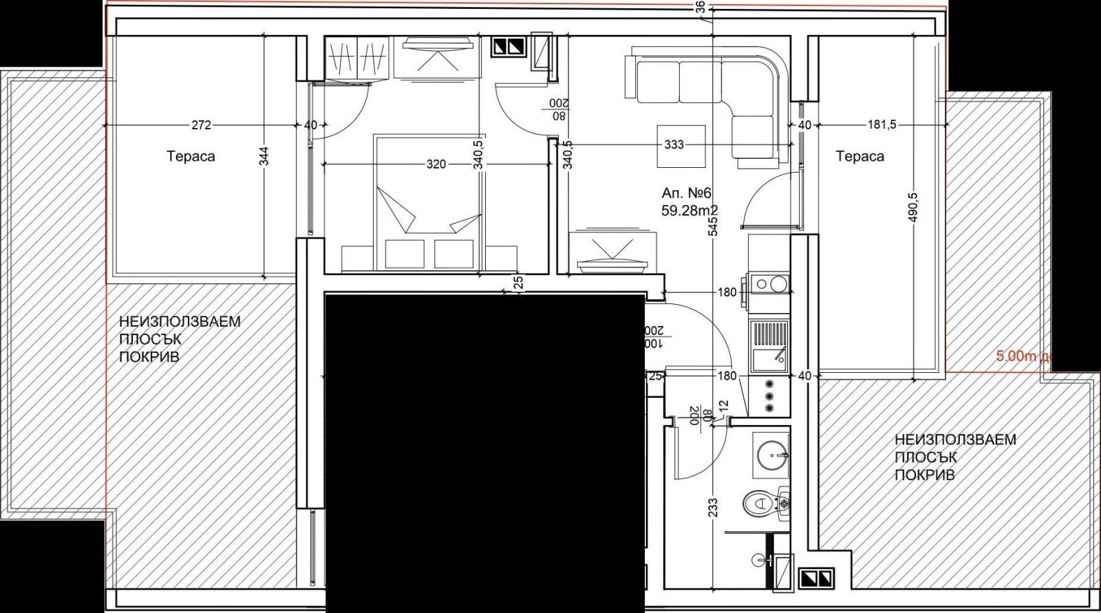
Имотът е ситуиран на 5 ти жилищен етаж и разполага с жилищна площ 80,71кв.м., разгърната в следното разпределение: хол с кухня, спалня, две тераси, баня с тоалетна.
Към имота има избено помещение от 4.61кв.м.
Апартаментът се предлага във вид на завършване по БДС ("на тапа" - шпакловка, замазка.)
В ЦЕНАТА Е ВКЛЮЧЕНО ПАРКОМЯСТО ПРЕД СГРАДАТА.
Сградата е в строеж и се очаква да бъде въведена в експлоатация (Акт 16) до края на 2027г.
Агенцията съдейства за банково кредитиране с всички водещи банки в страната при най-добри условия!
За оглед на това и други атрактивни предложения, не се колебайте да ни потърсите на посочения телефон или да ни изпратите данните си чрез формата за запитване на сайта. Реф. номер: 2089228







