⭐ Този имот може да бъде закупен на разсрочено плащане чрез БИК без доказване на доход, дори при влошена кредитна история!
☎0899 664 660 Росица Цонева
🎯 98 500
✅гр. Варна, кв. Левски
✅Площ - 63 кв.м.
✅Опция за паркомясто
✅Етаж 1
📌Начален етап на строителство!
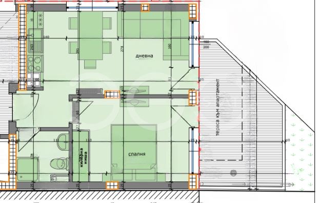
Имотът представлява : входно Антре, просторна и светла Всекидневна. с обособена кухненска част; уютна Спалня, Баня и Тоалет, слънчева тераса.
Състояние : Имотът се издава съгласно БДС Екстериорна блиндирана врата. Под : нивелирана замазка подготвена за полагане на гранитогрес, паркет или настилка по Ваш избор. Стени : машинно обработена гипсова мазилка с турбозол подготвена за боя или тапет по ваш избор. Мокри Помещения : ръчно обработена циментова мазилка подготвена за полагане на фаянс и теракота .ВиК инсталация на тапа . ЕЛ инсталация : контакти, ключ и фасонки. МДФ интериорни врати и ПВЦ дограма .
Строителство : Висококачествено Ново Строителство стоманобетонна конструкция посрещащи всички норми за сеизмичност съгласно БДС . Монолитна зидария изпълнена с най-висок клас Австрийски керамични блокове на фирмата Wienerberger Porotherm 25 N+F Light . Висок клас ПВЦ 5-камерна дограма с 65мм профил и 24мм всесезонен стъклопакет . Топлоизолационна система BAUMIT ESP-60mm. Силикат-силиконова фасадна мазилка на фирмата BAUMIT с висока паропропускливост и самопочистващ се ефект.
Отлична Локация : Имота се намира в един от най-предпочитаните за живеене и инвестиция райони на град Варна - кв. Левски, в близост до ТУ - Варна. Лесен и бърз достъп до главни пътни артерии, административни учреждения, банки, училища, детски градини, автобусни спирки, детски площадки, аптеки, търговски центрове, супермаркети, козметични студия, заведения и туристически атракции.
*Забележка : Приложените по-горе снимки, и визуализации са илюстративни, те имат за цел да Ви дадат максимално добра и идейна представа за общия вид и разпределението на имота !
Отлична Схема на плащане: 360estate може да съдейства за безлихвено разсрочено плащане на избраният от Вас имот, съобразено с Вашите нужди.
Виж всички обяви в 360estate.bazar.bg или тук
        
       
         
         
             
            






