Уникален по рода си затворен комплекс, разположен в Малинова долина. Разпростира се на 14 000 м2 площ, от които 8000 м2 са предвидени за паркова среда. Проект създаден да впечатли и най-претенциозния вкус. Изключително комуникативна локация и безупречно качество на изпълнение.
КУПИ ЗА EUR 811 на месец!
БЕСТ СЕЛЪРС предлага на Вашето внимание двустаен апартамент в ж.к. Малинова долина .
За да не изпуснете този имот, обадете се сега и цитирайте този код: 21139.
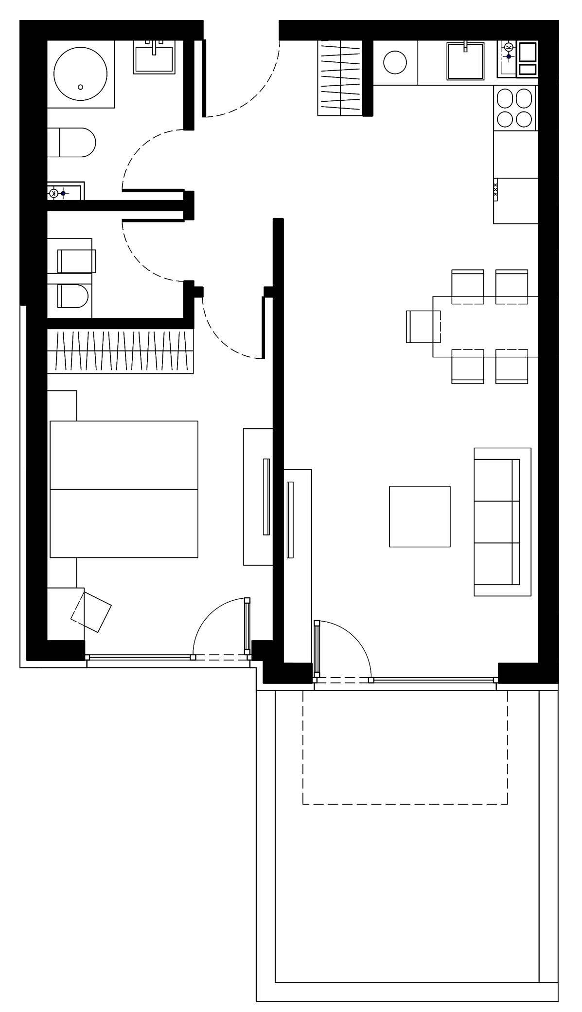
РАЗПРЕДЕЛЕНИЕ: Входно преддверие, просторна всекидневна, кухня с трапезария, спалня, санитарен възел и тераса.
СГРАДА: Сградата се очаква да бъде въведена в експлоатация през 2026 година. Етаж 1/4.
ЛОКАЦИЯ: ж.к. Малинова долина . Сградата се намира в близост до Зимен дворец на спорта, Национална спортна академия (НСА), ДГ 190 Щастливо детство , хипермаркет Кауфланд и супермаркет Фантастико . Бърз достъп до бул. Климент Охридски .
---
БЕСТ СЕЛЪРС е Вашият партньор при сключването на сделка с недвижим имот от първия оглед до финалния подпис. Екипът ни от професионалисти е твърдо решен да промени представата Ви за пазара на недвижими имоти и да Ви остави с приятни емоции след приключването на една от най-важните сделки в живота Ви. Можете да разчитате на нас за ПЪЛНО съдействие в търговските преговори, абсолютно прозрачна обстойна проверка на историята на имота за целия период, консултация и набавяне на пълния пакет документация, необходими за финализиране. На купувачите, разчитащи на банков кредит сме готови да осигурим НАПЪЛНО БЕЗПЛАТНО професионално кредитно обслужване от водещи НЕЗАВИСИМИ кредитни посредници. ОДОБРЕНИЕ ДО 24 часа.







