ДИРЕКТНО ОТ СТРОИТЕЛЯ!
БЕЗ КОМИСИОНА ОТ КУПУВАЧА!
ПЛАЩАНЕ НА ВНОСКИ!
АКТИВ ИМОТИ представя:
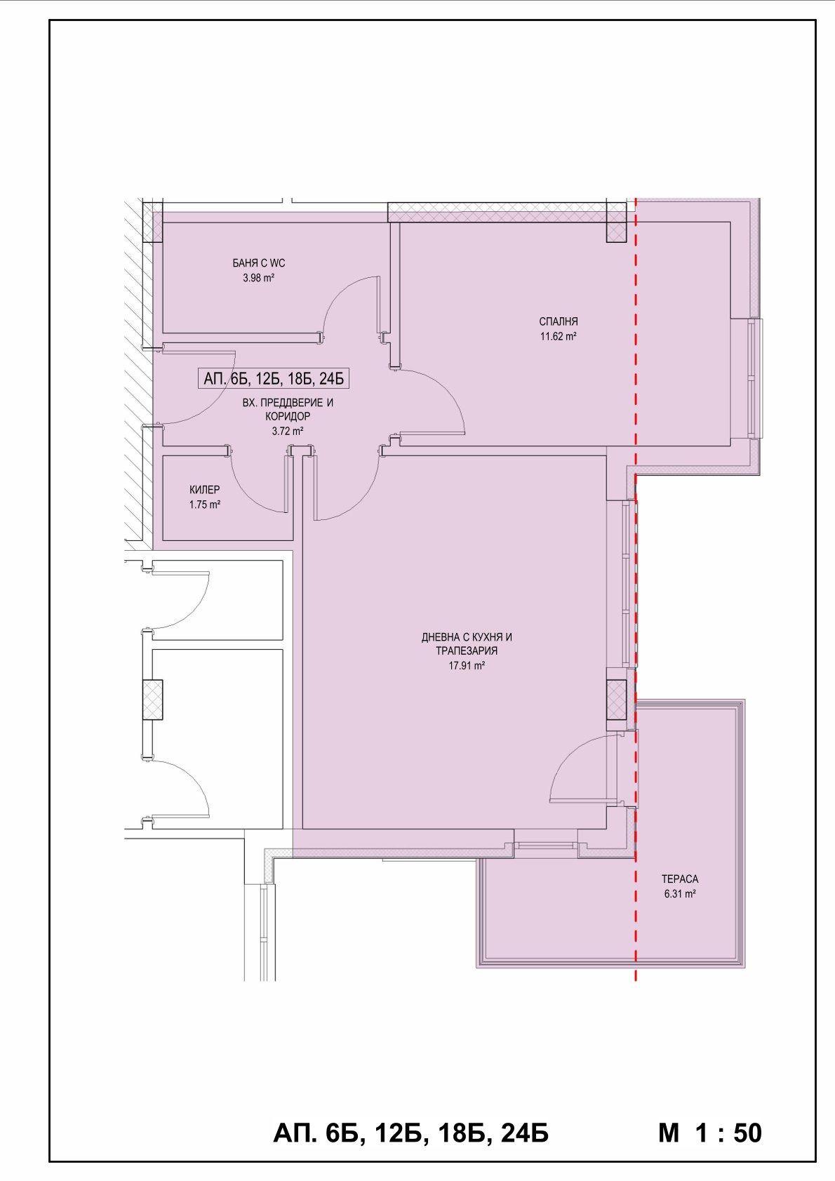
Двустаен апартамент
Местонахождение: бул. 3-ти март 54, кв. Запад 2
Разположен на пети жилищен етаж с асансьор
Площ: 68 кв. м.
Разпределение:
Входно преддверие с коридор, дневена-хол с кухненски бокс и тераса, спалня, баня с тоалетна, килер.
Изложение: Юг/Север
Съдействаме за получаване на ипотечен кредит
Реф. 4333 (25В)
Жилищен комплекс АЛГАРА - перлата в кв. Запад 2, гр. Търговище, бул. 3-ти март 54.
Проект на Актив!
Зеленина, свежест и класа-това събира в себе си Комплекс АЛГАРА, даващ усещане за спокойствие и хармония.
С изчистена и стилна визия, Комплекс АЛГАРА е изграден от две самостоятелни жилищни сгради на 5 етажа,
предлагащи висок комфорт на обитаване, спокойствие и уединение.
Типовете апартаменти са с една, две и три спални, както и градински апартаменти със собствен двор.
Осигурено е подземно и надземно паркиране, с гаражи и паркоместа към всяко жилище.
За децата е предвидена детска площадка.
Осигурена е достъпна среда.
Технически характеристики:
Конструкция монолитна стоманобетонна безгредова
Тухли: 25 см
Вътрешни стени и тавани: машинно гипсова мазилка
Подове: изравнителна замазка
Цялостна система за топлоизолация 10 см
Силикатна мазилка
Висококачествена PVC дограма
Луксозни общи части
Асансьор
Домофонна система
Електроинсталация с ключове и контакти
Изградена ВиК инсталация до тапа, монтирани водомери с
дистанционно отчитане
Направено окабеляване за интернет, телевизия, телефон
Входни блиндирани врати
-----------------------------------------------------------------------------------------
РАЗЧИТАЙТЕ НА НАС ПРИ ИЗБОРА НА ВАШИЯ ИМОТ!
АКТИВ ИМОТИ - ТРАДИЦИЯ, КАЧЕСТВО, ДОВЕРИЕ, СИГУРНОСТ!
-----------------------------------------------------------------------------------------
Виж всички обяви в activebg.bazar.bg или тук
        
       
         
         
         
         
             
             
             
            






