ТОПИММО предлага за продажба двустаен апартамент в новострояща се тухлена сграда в кв. Владиславово в близост до спирка на градски транспорт, детски градини, училища, хипермаркети, заведения.
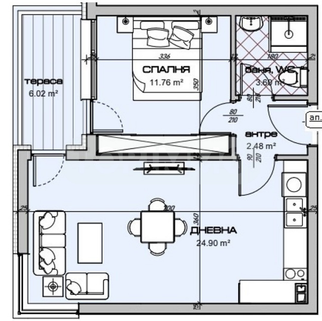
Разположен на шести етаж със западно изложение и следното. разпределение: антре, всекидневна с кухненска част 25 кв.м., спалня 11.8 кв.м., тераса, санитарен възел и прилежащо мазе.
Имотът ще бъде завършен по БДС стандарт от фирма наложила се на пазара с качествени и луксозни сгради.
С възможност за закупуване на паркомясто. Разсрочена схема на плащане.
Можем да организираме оглед в удобно за вас време, свържете се с нас! Референтен номер: PL-3994







