Акт 14 - ноември! Акт 16 - 2026 г.
Плащате сега 36 706 евро, а останалите 71 944 евро - СЛЕД АКТ 16!
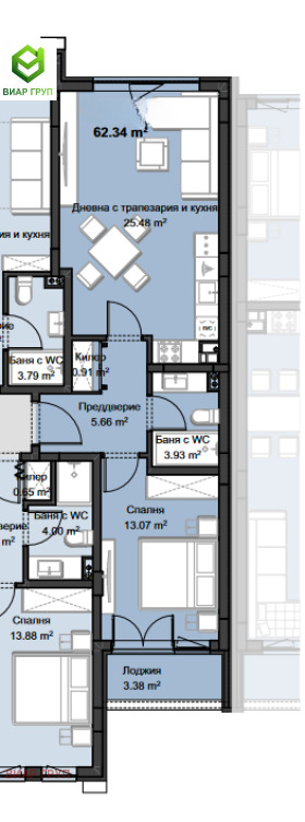
Апартаментът е с площ 74,16 кв.м (чиста площ 62,34 кв.м). Намира се на 3-ти жилищен етаж /4-ти строителен/ в 9-етажна сграда пред акт 14. Състои се от просторен хол с кухненска част - 25,48 кв.м, самостоятелна спалня 13,07 кв.м, преддверие - 5,66 кв.м, баня с тоалетна - 3,93 кв.м, тераса - 3,38 кв.м и килер - 0,91 кв.м. ДВЕ ИЗЛОЖЕНИЯ: хол на север, спалня на юг. Към апартамента има и прилежаща изба - 4,04 кв.м. Продава се заедно с ПОДЗЕМЕН ГАРАЖ - 22,78 кв.м НА ОТДЕЛНА ЦЕНА - 32 320 евро.
Непосредствено до него собственикът продава и ЕДНОСТАЕН с подземно паркомясто на цена 85000 Е за апартамента + 23 230 Е паркомястото. Могат да се съединят двата апартамента!
Ето линк за едностайния:
https://www.alo.bg/10162166
Виж всички обяви в ialians.bazar.bg или тук
        
       
         
         
         
         
         
         
         
         
         
         
             
             
             
             
             
             
             
             
             
            






