Представяме комфортен двустаен апартамент със самостоятелен двор, за продажба в иновативен затворен комплекс с получен Акт 16 в кв. 'Бояна'.
Разположен в престижния квартал, този комплекс съчетава отлична локация, висококачествени материали и модерни технологии, което го прави идеален избор за хора, търсещи комфортен живот в уредена градска среда с близост до природата. Благодарение на удобния достъп до бул. 'България' и Околовръстния път, можете бързо да достигнете центъра на града, докато близостта до парк 'Витоша' осигурява чист въздух и красиви гледки.
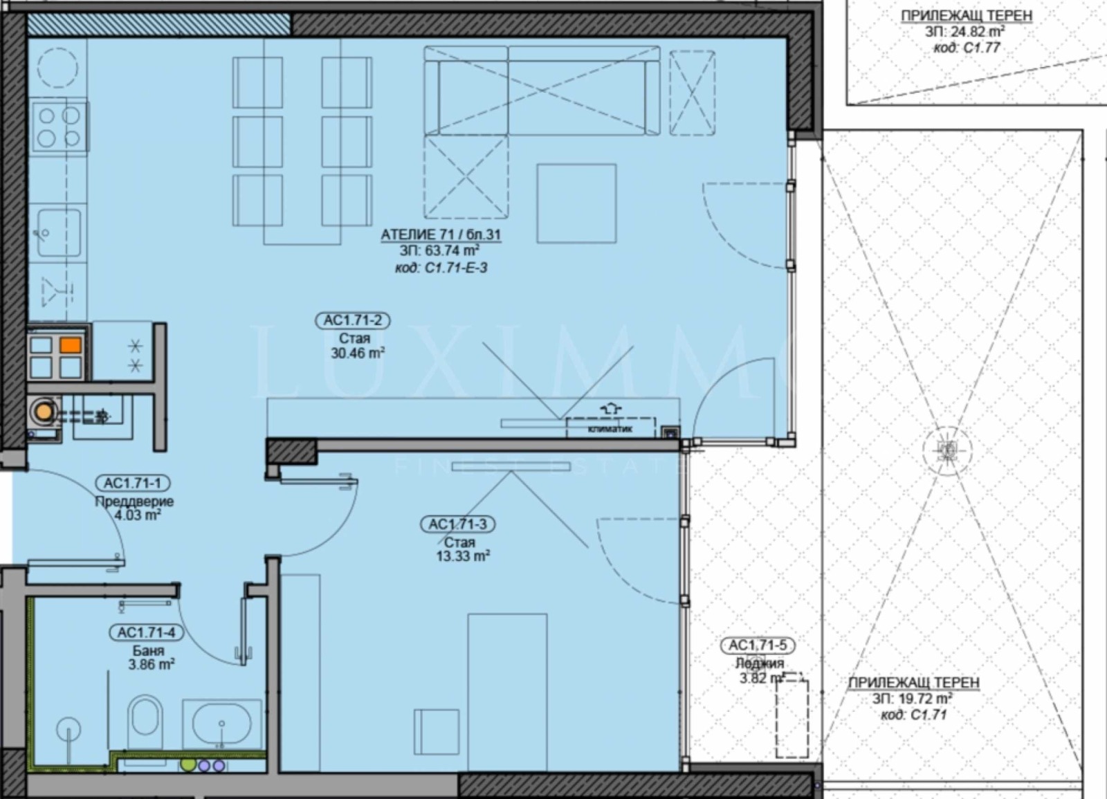
Параметри на имота
Апартаментът се намира на партерен етаж и има обща площ 76.34 кв.м. Състои се от антре, баня с тоалетна, спалня, всекидневна с кухня, тераса тип лоджия, с излаз от дневната и спалнята, двор - 19.72 кв.м.
Предлага се в степен на завършеност по БДС:
подове с шумоизолация Copersound P-TEX;
ключове и контакти Legrand Valena Life;
PVC дограма с троен стъклопакет Kömmerling;
отопление на газ с котел Bosch и окабеляване за климатици;
входна врата Solid, модел iDoor 20-23;
тераса с мразоустойчив гранитогрес.
*Всеки апартамент в комплекса разполага със система Smart Home ready, позволяваща управление на осветлението, отоплението, климатизацията и сигурността чрез мобилно устройство.
Допълнително към имота може да се закупи подземно паркомясто на цена 68,454 лв. (35 000 евро) без ДДС.
За комплекса
Комплексът, състоящ се от 8 сгради с общо 204 апартамента и ателиета, е проектиран с функционални разпределения и панорамни гледки към града и планината. Зелените пространства между сградите са оформени с градини, алеи за разходки, зони за отдих и детски площадки. За допълнителен комфорт са предвидени фитнес, ресторант, контролиран достъп и жива охрана. Подземният паркинг предлага ...
Цената на имота е 190 000 евро / 371 607.70 лв. без ДДС или 228 000 евро / 445 929.24 лв. с ДДС. Данъчен кредит може да се ползва при определени условия.
За повече информация свържете се с нас и цитирайте референтния номер на имота. Моля, кажете, че сте видeли обявата в този сайт.
Референтен номер: SOF-129168
Тел: 0884 512 104, 02 451 81 62
Отговорен брокер:Евелина Царева
Виж всички обяви в luximmo.bazar.bg или тук







