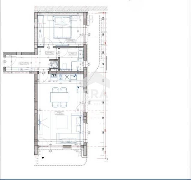
Предлага се в степен на завършеност по БДС: ПВЦ дограма на прозорците, блиндирана входна врата, под-циментова замазка, стени-шпакловка, монтирани ключове, контакти, фасунги. Има възможност да бъде завършен до ключ, както и да бъде обзаведен. Подходящ е за целогодишно живеене и/или за отдаване под наем.
В момента сградата е на етап Акт 14. Срокът на завършване е месец юни 2025г.
Намира се в близост до: 5 малки магазина, на 10 мин. от магазин Лидл (в Балчик и Каварна), на 5 мин. от множество ресторанти в Балчик, на 5 мин от Тузлата (най - големият курорт за лечение с кал и минерална вода в Източна Европа), голф игрища, плаж Бяла Лагуна, плаж Бендида, плаж Герои, плаж Аргата, плаж Бял бряг.
Комплексът ще предлага:
- бърз Wi - Fi и специални оптични кабели във всеки апартамент;
- модерни фоайета и асансьори от висок клас във всяка сграда;
- 24/7 охрана на място, както и CCTV видеонаблюдение;
- 29 външни паркоместа (някои покрити);
- 2 зарядни устройства за електрически автомобили Wallbox (1 kw);
- голям басейн с минерална вода, подходящ за деца и възрастни;
- открито джакузи с минерална вода, достъпна 365 дни в годината;
- услуги по почистване при поискване;
- достъп до медицинско обслужване;
- обезопасена зона за кучета на разположение на жителите и техните домашни любимци;
-трансфер до близките голф игрища или плажове.
Други вълнуващи дейности в района: яхтени, риболовни и ловни турове, достъп до Водни паркове в Албена, конна езда на плажа, спортни дейности, включително туризъм, парапланеризъм, футбол, тенис и др.
Дивата природа на региона, съчетана с ексклузивността на наличните курорти, предлагащи спиращи дъха гледки тишина и спокойствие , може лесно да ви накарат да си мислите, че сте се телепортирали в Южна Франция. Разбира се, кратко 40-минутно пътуване до Варна може да ви помогне да стигнете до всяка дестинация по света, особено след като летище Истанбул е само на 30 минути със самолет. За тези, които предпочитат да пътуват по-ексклузивно, се предлагат чартърни услуги с частен самолет от летище Балчик, само на 5 минути от комплекса, до почти всяка дестинация в Европа.
ЕРА е независим кредитен посредник към БНБ и предоставя безплатна консултация и съдействие при финансиране на избрания от Вас имот... Код: 5301283
Оферта 5301283
Виж всички обяви в eravizia.bazar.bg или тук
        
       
         
         
         
         
         
         
             
             
             
             
             
            






