БЕЗ КОМИСИОН ОТ КУПУВАЧА! В СТРОЕЖ! ПОРЕДЕН ОТЛИЧЕН ПРОЕКТ ОТ УТВЪРДЕН ИНВЕСТИТОР/ИЗПЪЛНИТЕЛ! Представляващ ЖИЛИЩЕН КОМПЛЕКС от четири самостоятелни жилищни сгради, оформен с вътрешен озеленен двор, детска и спортна площадка, зони за отдих. Избор на апартаменти с различни разпределения, квадратури и изложения, като на партерно ниво има жилища със самостоятелни веранди, а за любителите на панорамни гледки се предлагат в продажба апартаменти с по- големи тераси, ситуирани на последен етаж. Местоположението на комплекса е кв. Остромила с удобен и бърз достъп до централни булеварди. Възможност за закупуване на външно или подземно паркомясто.
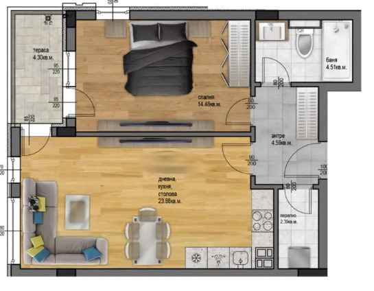
Жилището, което предлагаме за продажба е двустайно с югозападно изложение, състои се от дневна с кухненски бокс и трапезария- 23,88 кв.м, спалня -14,48 кв.м, баня с тоалетна, входно антре, перално помещение и тераса. Обща площ 73,91 кв.м.
Строителството на комплекса ще бъде изпълнено с висококачествени материали и технологии, отговарящи на НАЙ-СЪВРЕМЕННИТЕ ИЗИСКВАНИЯ:
- монолитна стоманобетонна конструкция, външни стени керамични тухли WIENERBERGER;
- Немска PVC 7-камерна дограма 'Schüco ' с троен стъклопакет и три уплътнения, отговаряща на изискванията за висока енергийна ефективност.
- топлоизолация BAUMIT 10см.
- хидравлични асансьори
- блиндирани входни врати
- иновативна фасада със система за вентилация от еталбонд панели
- апартаментите се издават на турбозолна мазилка и замазка.
Схемата на плащане е разсрочена в етапа на строителството. Съдействие при банково кредитиране.
При интерес се свържете на посочения телефон в офертата.
Осигуряваме на клиентите си качествено обслужване! Оказваме посредническа дейност от началото до финализирането на сделка за покупко-продажба на имот.
'Домът не е просто място, където се прибираме вечер, а една основа, върху която градим заобикалящия ни свят!'
Виж всички обяви в zlatenkluch.bazar.bg или тук







