Районът е добре свързан с останалата част на Варна чрез автобусни и тролейбусни линии. Някои от автобусните линии, които обслужват квартала, включват 12, 13 и 209. В близост до имота се намират множество магазини, училища, детски градини и други обществени услуги, което го прави удобен за живеене.
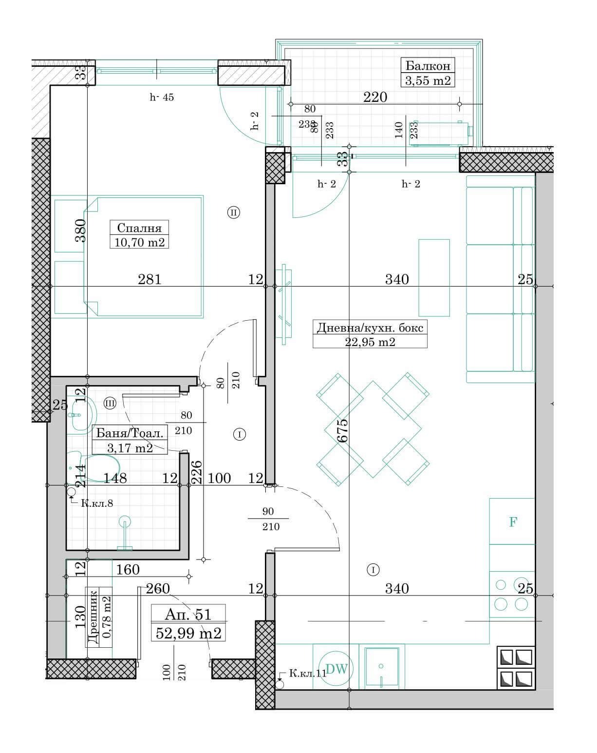
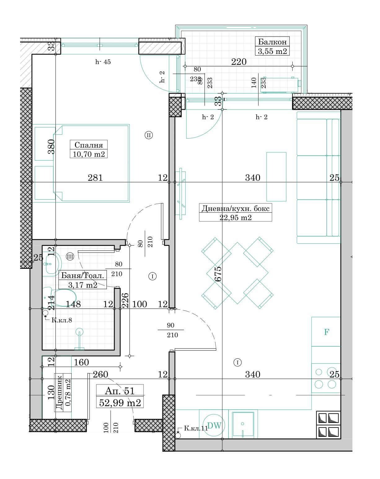
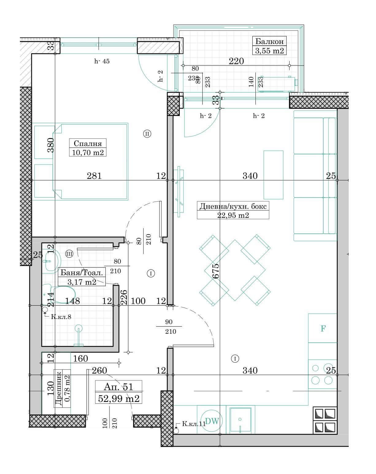
Апартаментът е ситуиран на 9-ти етаж от 11 етажна града и разполага с площ от 62 кв.м., разгърната по следния практичен начин: входно антре, дневна с кухненски бокс, спалня, баня с тоалетна, балкон
Допълнителна информация:
Сградата ще бъде изпълнена с висококачествени материали, осигуряващи енергийна ефективност и стилен външен вид. Дограмата ще бъде 6-камерна Кюмерлинг, която осигурява отлична топло- и шумоизолация. За зидарията са използвани тухли Винербергер, които гарантират висока якост и дълготрайност на конструкцията. За изолацията на сградата е избран 8 см стиропор с плътност 15 кг/м?, който ще осигури оптимална топлинна защита през всяко време на годината. Общите части на сградата ще бъдат с настилка от камък, която не само ще придаде елегантен и издръжлив вид, но и ще поддържа високото качество на строителството. За парапетите ще бъде използван алуминий, който ще осигури сигурност, но и ще добави съвременен и модерен акцент към външния вид на сградата.
Сградата е пред Акт 14, като Акт 16 се очаква да получи през 2026 година.
Жилището ще бъде издадено в степен на завършеност "на тапа" - по БДС.
За оглед на това и други атрактивни предложения, не се колебайте да ни потърсите на посочения телефон или да ни изпратите данните си чрез формата за запитване на сайта.
Реф. номер: 2086505
Агенцията съдейства за банково кредитиране с всички водещи банки в страната при най-добри условия!
Виж всички обяви в titanprvarna.bazar.bg или тук
        
       
         
         
         
         
         
         
         
         
         
         
         
         
             
             
             
             
             
             
             
             
             
             
             
            






