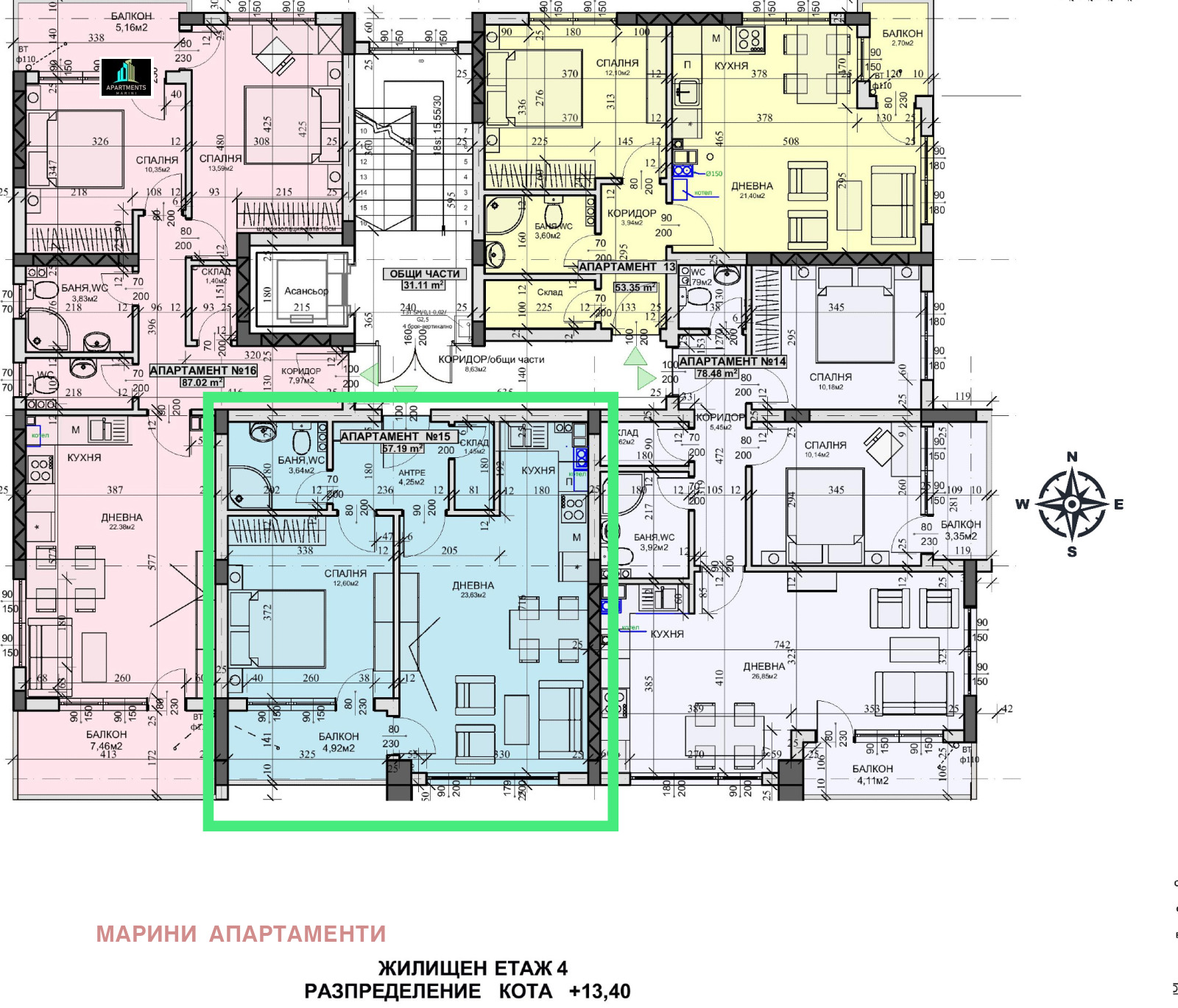
ДИРЕКТНО ОТ ИНВЕСТИТОР! Апартамент в новострояща бутикова жилищна сграда в кв.Картала Перфектна локация. Южно изложение. Възможност за закупуване на подземни и наземни паркоместа! Изключително функционално е разпределението на апартаментите, всеки от които е с една или две тераси и собствено складово помещение. Жилищата се отличават с просторни, изпълнени със слънчева светлина помещения, функционално разпределение и комфортна семейна среда. Всеки от апартаментите разполага с просторна дневна, една или две спални, баня с тоалетна, панорамна тераса. Сградата ще бъде с контролиран достъп. За удобство на всички бъдещи собственици се предлагат по 2бр. паркоместа.За повече информация посетете: http://marini.apartments/
тел.: 0888352955, e-mail: [email protected], http://: mariniapartament.imot.bg







