EРA Парадайс Ви предлага за продажба 1-стайни, 2-стайни и 3-стайни апартаменти в нова сграда (до степен на завършеност с Акт 14) в ж.к. Левски 2, гр. Варна. Сградата е с луксозни общи части, построена върху парцел с площ от 499 кв. м. Състои се от 1 подземно ниво, където са разположени подземни паркоместа и 8 надземни нива със 17 просторни, светли и функционално разпределени жилища с една, две и три спални, 7 кабинета, както и 1 магазин на партерния етаж.
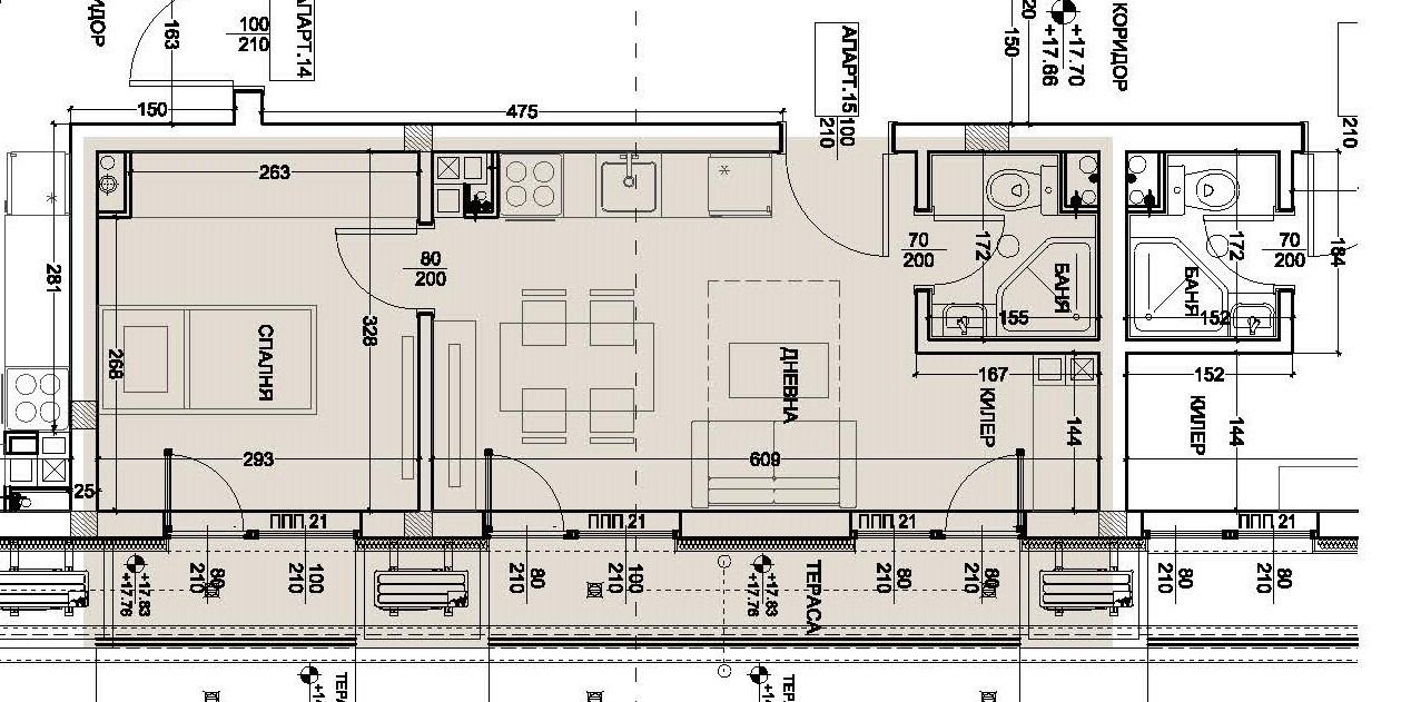
Апартаментът, който Ви представяме в настоящата обява, е двустаен, с обща площ от 60 кв. м. Състои се от антре, дневна с кухненска част и трапезария (20 кв. м), самостоятелна спалня (10 кв. м), балкон с излаз от двете стаи, баня с тоалетна (2.70 кв. м), и килер (1.44 кв. м). Разположен е на седмия (непоследен) етаж в сградата.
Апартаментите се предлагат в степен на завършеност по БДС, като по желание на клиентите, могат да бъдат завършени до ключ . Строителството е висококачествено и от утвърден строител.
Сградата е умело ситуирана с много въздух и пространство около нея, като основна цел на проекта е осигуряването на функционално и удобно пространство в жилищата. Намира се на близко разстояние до Втори корпус на Икономическия университет, Първа езикова гимназия, ОУ Ангел Кънчев', детски градини, магазини и училища, както и удобни спирки на градския транспорт автобусни линии 12 и 13.
Оферта 7100148







