⚠️Агенция за недвижими имоти ХОУМ ФОР Ю , Ви представя най новия ни проект:
🔝Луксозна жилищна сграда в затворен комплекс.
🏢Сградата се състои от: модерен безшумен асансьор, сутерен с гаражи и мазета, партерен етаж с апартаменти с дворно място /градина/ и три жилищни етажа.
🔥Предимства и характеристика на сградата:
✅Зидария с Wienerberger-Porotherm 25;
✅6 камерна ПВЦ дограма с високоенергиен двоен стъклопакет 4 сезона и К-а стъкло за запазване на температурата в помещенията;
✅Топлоизолационна система Baumit Pro EPS (експандиpан полистирен) 10 см. и полимерна мазилка;
✅Луксозни общи части с плочки и декоративни PVC плоскости на стените;
✅Стени и тавани: фина гипсова мазилка на Knauf ;
✅Блиндирани входни врати;
✅Изводи за климатици във всяка стая;
✅Под: циментова замаска;
✅Ел. до точка;
✅ВиК до тапа;
📍Локация: Сградата се намира в жк. Струмско, гр. Благоевград.
✅Лесна и бърза транспортна локация към София и Кулата;
✅На 250 м. от детска градина Първи юни ;
✅На 350 м. от магазин СТОМИ ;
✅На 450 м. от спирката на градския транспорт за линия 2;
✅На 500 м. от СУ Иван Вазов ;
✅На 500 м. от магазин Мосю Бриколаж и Техномаркет;
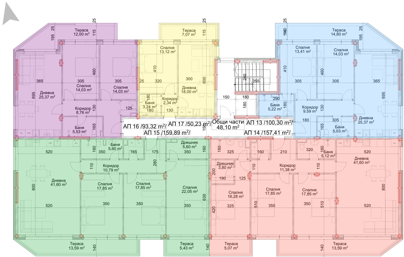
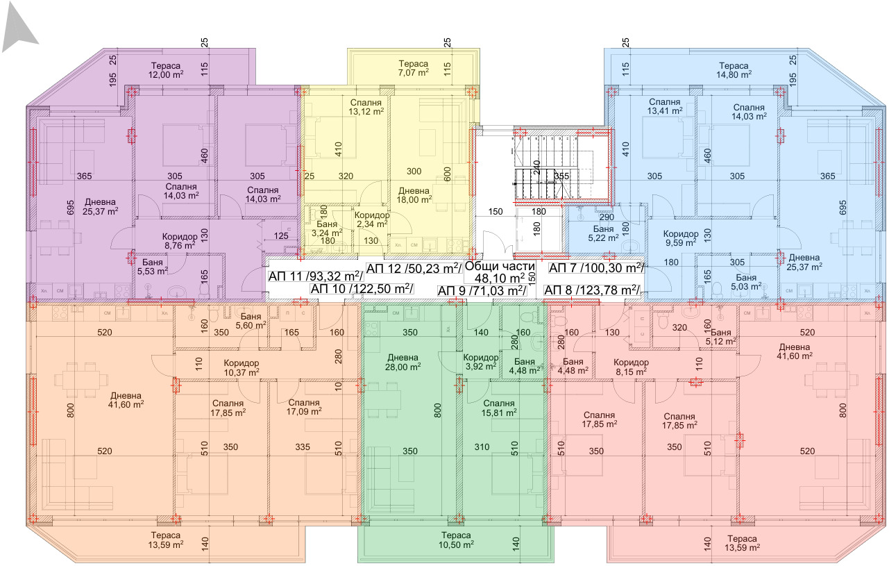
❌Имоти за продажба в сградата:
✅двустайни апартаменти с градина с обща площ от 76,71 м2 до 166,32 м2, на цени от 49 176 евро до 106 010 евро с ДДС;
✅тристайни апартаменти с градина с обща площ от 124,63 м2 до 198,22 м2, на цени от 88 425 евро до 133 772 евро с ДДС;
✅двустайни апартаменти с площ от 57,57 м2, с 81,42 м2, на цени от 49 913 евро до 70 591 евро с ДДС;
✅тристайни апартаменти с площ от 106,96 м2 до 183,27 м2, на цени от 92 735 евро до 158 895 евро с ДДС;
✅подземни гаражи с площ от 17,38 м2 до 42,37 м2, на цени от 15 068 евро до 36 735 евро с ДДС;
✅мазета с площ от 7,35 м2 до 11,39 м2, на цени от 4 557 евро до 7 062 евро с ДДС;
🔥ГЪВКАВА СХЕМА НА ПЛАЩАНЕ:
✅35 % първоначална вноска
✅35 % на АКТ 14
✅20 % на АКТ 15
✅10 % на АКТ 16
🏗Етап на строителство: В СТРОЕЖ!!!
🏗ПЪРВА КОПКА - 17.06.2025г.
📄Акт 14 - декември 2025г.
📄Акт 15 - декември 2026г.
📄Акт 16 - юни 2027г.
🏠Новият Ви ДОМ е точно тук!
РЕФЕРЕНТЕН 6395







