218352 Предлага се за продажба нов двустаен апартамент в строящия се комплекс Marea South Beach в село Равда.
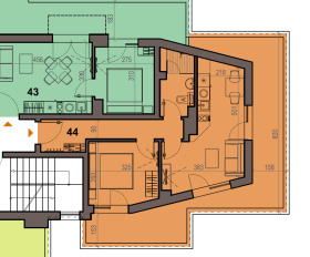
Апартаментът е разположен на 4-ия етаж в пететажна сграда с асансьор и има обща площ от 83,38 кв.м. Жилищната площ е 45,61 кв.м. Площта на голямата тераса е 28,78 кв.м.
Разпределението на новия апартамент предлага отделно входно антре с коридор, обособена всекидневна с отделена кухня и трапезария, зона за отдих, уютна спалня, баня с тоалетна. От всяка стая има директен изход към терасата.
Без такса поддръжка!
Новият жилищен комплекс Marea South Beach се намира на тихо и спокойно място, на 300 метра от плажа и на 700 метра от центъра на Равда. В непосредствена близост е налична цялата необходима инфраструктура за комфортно целогодишно живеене.
Комплексът Marea South Beach е изграден от висококачествени материали и се отличава с модерна архитектура. Разполага с асансьор, контролиран достъп и благоустроена озеленена територия. На сутеренния (шести) етаж на сградата ще бъде разположен подземен паркинг с 18 паркоместа.
НАЧАЛО НА СТРОИТЕЛСТВОТО - януари 2025 г.
КРАЙ НА СТРОИТЕЛСТВОТО - юли 2027 г.







