АКЦИЯ за кратко време!
Директни продажби от Инвеститор!
Строителна фирма Ей.Джи.Ейч ЕООД започва строеж на нова жилищна сграда в гр.Созопол, м.Мисаря!
Бързоразвиващ се район, в близост до плаж Хармани, на 5мин пешеходно разстояние.
Жилищата ще се издават на степен до ключ, готови настилки + санитария в баня, заредени контакти и осветителни тела! Сградата ще бъде с асаньор и луксозни общи части!
Различни схеми на разплащане.
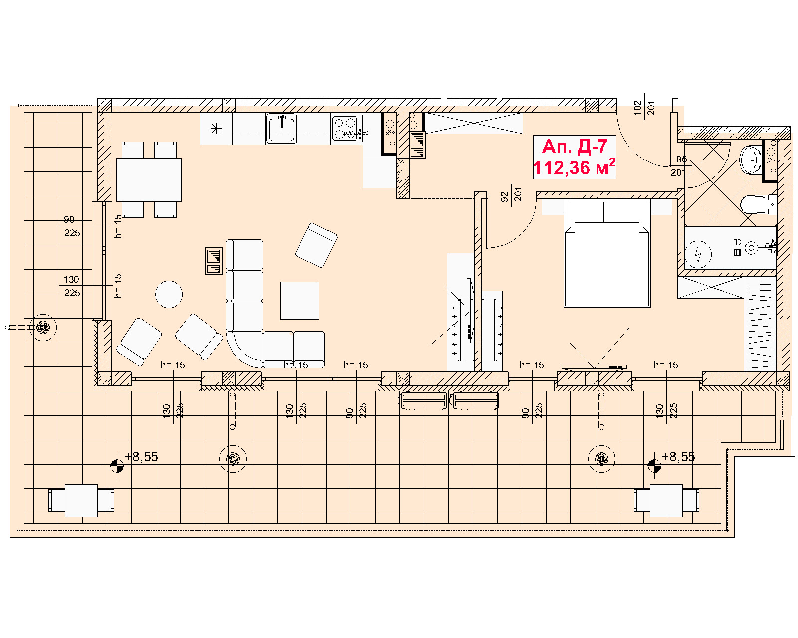
Предлагаме на Вашето внимание просторен апартамент, разположен на последен етаж с панорамна гледка море. Имотът е с квадратура 145,59м2 и се състои от голяма дневна с кухненски бокс, голяма спалня с гардеробно, баня с wc, коридор и голяма тераса. Към апартамента има допълнително самостоятелно помещение изба/килер на приземен етаж.
В сградата се предлагат и самостоятелни гаражи на подземно ниво и на ниво партер.







