Като официален партньор по продажбите на KOURTIDIS GROUP
Хоум 1 има удвоволствието да Ви представи Комплекс Eriphyle
Скала Рахони , о-в Тасос
Новият комплекс Eriphyle ще бъде изграден в живописния район Скала Рахони на красивия остров Тасос. Този модерен комплекс е идеално допълнение към региона, разположен на само 250 метра от златистите му пясъчни плажове.
Състои се от 34 елегантни апартамента, проектирани с внимание към ергономичността и максималното оползотворяване на пространството.
Жилищата са създадени, за да отговорят на нуждите на съвременните домакинства, като предлагат практични решения, които отговарят както на ваканционните изисквания, така и на дългосрочното ползване.
В екстериора преобладава зеленината, с добре поддържани градини, изпълнени с дървета и внимателно подбрани растения, които спомагат за хармоничното интегриране на комплекса в природната среда.
Разположени са и общи плувни басейни, които предоставят възможност за допълнителни развлечения.
Новият комплекс Eriphyle в Скала Рахони е не само избор за тези, които търсят качествен начин на живот, но и значителна инвестиционна възможност.
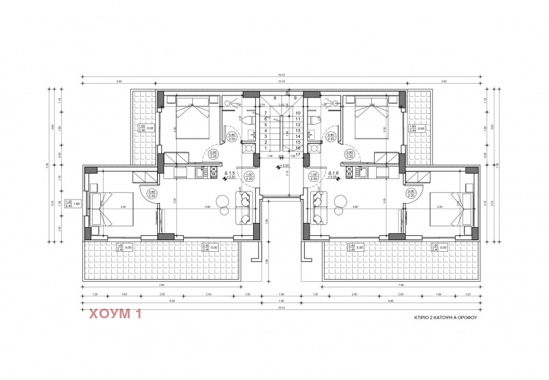
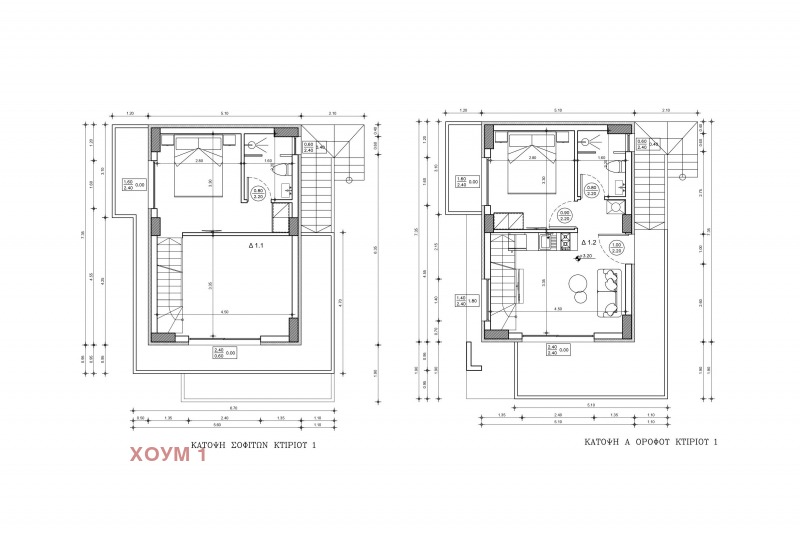
Комплексът включва:
11 апартамента на партерния етаж от 36,95 кв.м. до 39,55 кв.м., състоящи се от хол с кухненски бокс, 1 спалня, 1 баня.
6 апартамента на партерния етаж от 48,79кв.м. до 49,90кв.м., състоящи се от хол с кухненски бокс, 2 спални, 1 баня.
6 апартамента на етаж от 48,79кв.м. до 49,90кв.м., състоящи се от хол с кухненски бокс, 2 спални, 1 баня.
11 апартамента на етаж със софита от 55,45кв.м. до 60,47кв.м., състоящи се от хол с кухненски бокс, 2 спални, 2 бани.
Схеми на плащане: 20% при подписване на договор, 15% основи, 15% зидария,15% дограма, 15% топлоизолация, 15% настилки, 5% въвеждане в експлатация.
Програма за гарантирана възвращаемост на инвестицията - 6% годишна премия върху покупната цена на имота.
Програмата VIP Services включва управление на имотите в Гърция и действа при всякакви проблеми и нужди на клиентите, които се свързват с имотите им там.
За повече информация не се нуждаете и цитирайте следния код: G-01-54







