ИЗЦЯЛО ЮЖЕН!
ВЪЗМОЖНОСТ ЗА ЗАКУПУВАНЕ НА ПАРКОМЯСТО!
ПОДХОДЯЩ ЗА ЖИВЕЕНЕ И ИНВЕСТИЦИЯ!
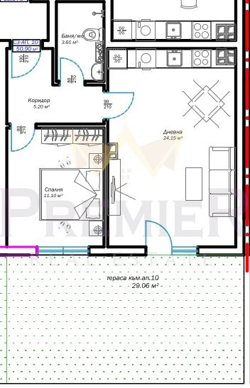
ИМОТИ ПРЕМИЕР Ви предлага ДВУСТАЕН апартамент в района на м-т Пчелина , в новострояща се жилищна сграда. Имота е с обща площ от 99 кв. м., разпределени както следва: дневна стая с кухненски бокс, спалня, баня с тоалет, килер, входно антре и балкон. Жилището е разположено на първи етаж в нова сграда с асансьор. При желание на клиента има ВЪЗМОЖНОСТ ЗА ЗАКУПУВАНЕ НА ПАРКОМЯСТО.
СГРАДАТА е с планирано висококачествено ново строителство изпълнено с най-висок клас Австрийски керамични блокове на фирмата Wienerberger Porotherm 25 N+F Light . Висок клас ПВЦ шесткамерен немски профил с троен стъклопакет. Топлоизолационна система BAUMIT ESP-60mm. Силикат-силиконова фасадна мазилка на фирмата BAUMIT с висока паропропускливост и самопочистващ се ефект. Монтирана топлоизолация на всички открити участъци с оглед предотвратяване образуването на конденз.
Ние от екипа на Имоти Премиер ще Ви помогнем в търсенето на мечтаното от Вас жилище като се ангажираме да получите професионални съвети, както и изрядни документи след пълна проверка на имота. При желание на клиента съдействаме за отпускане на банков кредит при най-изгодни условия. Разчитайте на нашата подкрепа до самото финализиране на сделката! За повече информация и оглед, позвънете на посочения телефон. Код на обяватa:359770
Виж всички обяви в imotipremier.bazar.bg или тук







