📐Разнообразие от апартаменти с модерна архитектура
📍Супер локация в близост до Plaza Mall и Метро
🌳Голям озеленен вътрешен парк
🅿Паркоместа и гаражи
🔐Сигурност и комфорт
Атрактивни цени и отстъпки от цената за плащане преди Акт 14.
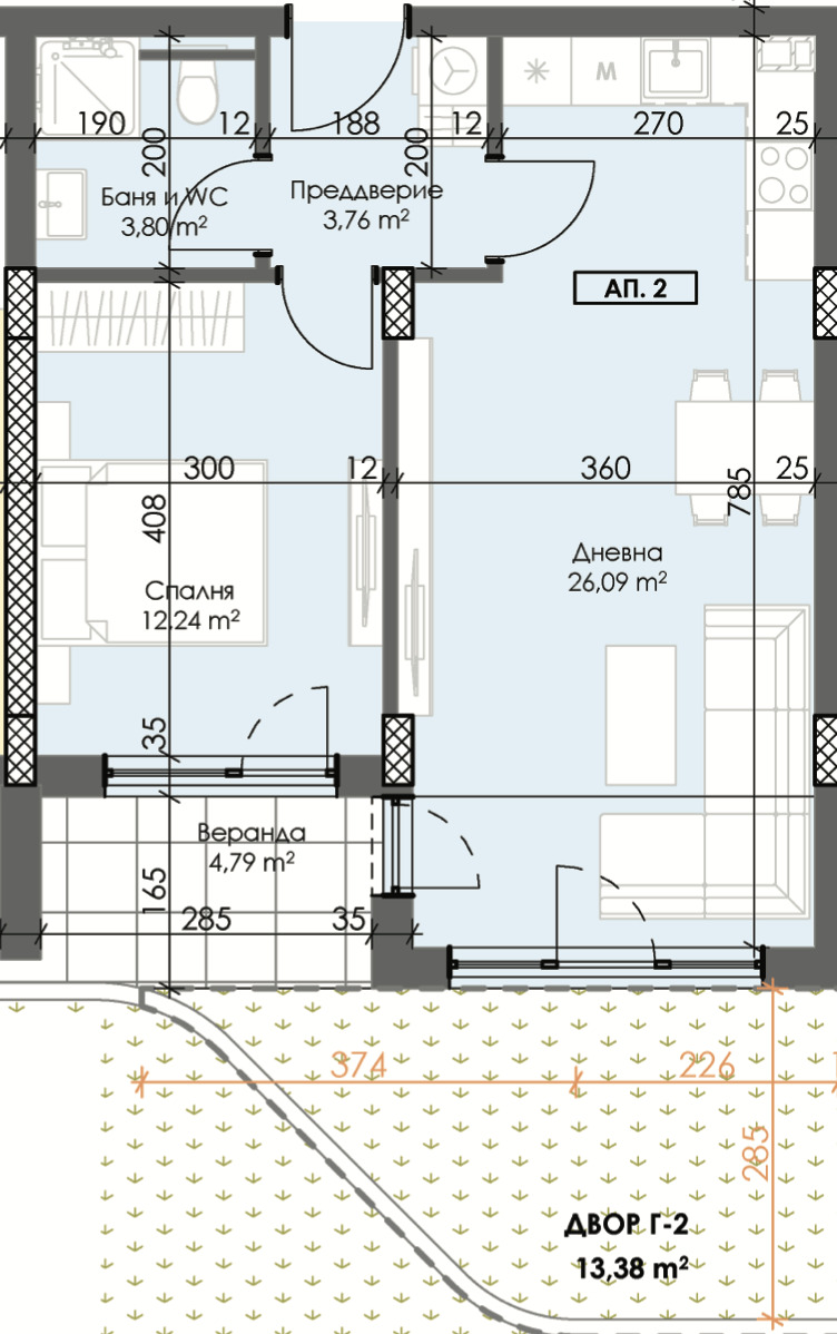
Представеният апартамент представлява уникален партерен апартамент с малък двор тип веранда, състоящ се от просторна дневна, спалня, баня с тоалетна, склад, веранда и двор.
Сграда Г-ап. 2
Позвъни и научи повече:
📲 0883 601 501
📲 0883 301 201
Виж всички обяви в spresidence.bazar.bg или тук
        
       
         
         
         
             
             
            






