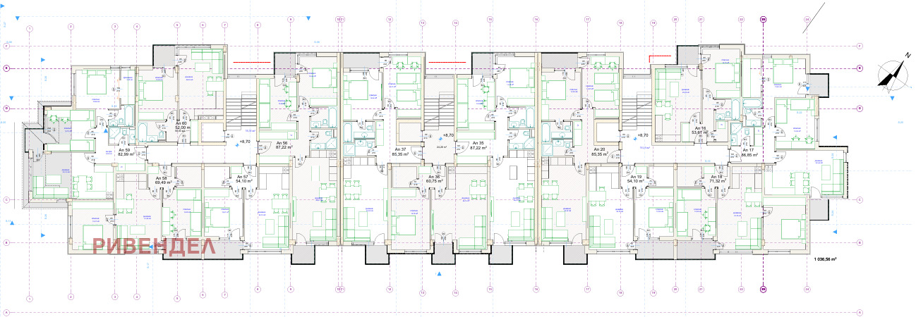
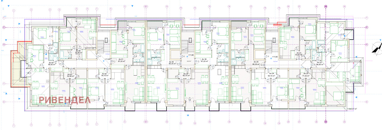
Двустайни и тристайни апартаменти за продажба в затворен комплекс в гр. Самоков. Перфектна възможност за покупка на жилище, имот за отдаване под наем или сезонна квартира. Ограничен брой апартаменти са на тази цена, така че се възползвайте от висококачествено ново строителство на неустоими цени от 1240 евро на квадрат без включено ДДС със страхотна локация в града. Апартаментите са на по-малко от 10 минути с кола от планинския курорт Боровец и на пешеходно разстояние от всички удобства и услуги в града. БЕЗ КОМИСИОННА за купувача.
+359 878877533
+359 896694241







