Агенция за недвижими имоти ХОУМ ФОР Ю има голямото удоволствие да ви представи за продажба двустаен апартамент 4 в началото на алеята на здравето в гр. Благоевград.
Вашият нов ДОМ се намира на КОТА + 3.40 на 1-ви жилищен етаж със северно изложение.
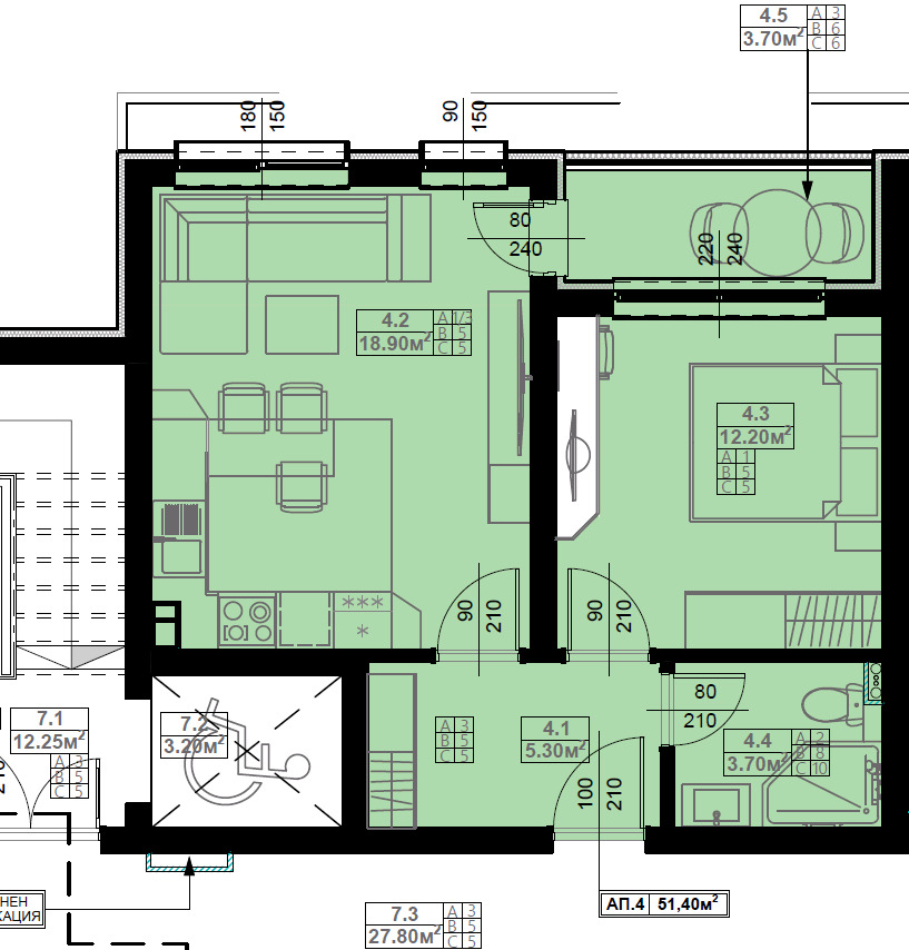
Застроената му площ е 51.40 кв.м. + 6.51 кв.м. общи части, което се равнява на 57.91 кв.м. обща площ.
Със следното вътрешно разпределение на стаите и тяхната полезна (светла) площ:
- входно антре с площ 5.30 кв.м.
- дневна с площ 18.90 кв.м.
- спалня с площ 12.20 кв.м.
- баня с тоалетна с площ 3.70 кв.м.
- тераса с площ 3.70 кв.м.
Жилището ще бъде завършено по БДС и ще се предаде в следния завършен вид:
- стени и тавани: фина гипсова мазилка (турбозол)
- под: циментова замазка
- ПВЦ дограма 5 камерна 4 сезона двоен стъклопакет
- блиндирана входна врата
- ел. до точка
- ВиК до тапа
За ваша сигурност, спокойствие и удобство за новия Ви ДОМ, предлагаме да закупите подземно парко място, за да не се налага всеки ден да обикаляте и да търсите място на което да паркирате автомобила си.
ЦЕНАТА Е БЕЗ ДДС!!!
ГЪВКАВА СХЕМА НА ПЛАЩАНЕ!!!
ЕТАП НА СТРОИТЕЛСТВОТО: В СТРОЕЖ!!!
АКТ 14 (това е документът за приемане на конструкцията на сградата, който се издава, когато сградата достигне етап груб строеж)
АКТ 15 (това е документът, с който се констатира, че сградата е напълно завършена)
АКТ 16 - до юни 2027г. (това е документа, с който сградата се въвежда в експлоатация или по просто казано годна за живеене )
Жилището очаква своите нови собственици, които ще го стопанисват и превърнат в техен дом!
За да получите повече информация за предлаганата от нас оферта може да ни се обадете на посочените телефони за връзка!
Екипът от професионалисти на ХОУМ ФОР Ю ще Ви помогне да сбъднете мечтите си и да ги превърне в реалност, като ви съдейства НАПЪЛНО БЕЗПЛАТНО при кандидатстването за жилищен кредит с ПРЕФЕРЕНЦИАЛНИ УСЛОВИЯ от най-големия кредитен консултант в България КРЕДИТ ЦЕНТЪР!
Ако предлаганият апартамент ви е харесал и представлява интерес за вас, не се колебайте да се свържете с наш брокер, за да резервирате час за оглед в удобно за вас време!
Заповядайте в нашият офис на бул. Кирил и Методий 2 за безплатна консултация с нашите професионалисти, които ще ви обърнат специално внимание, като ви запознаят с пазара на недвижими имоти и ви помогнат с избора на ново жилище според вашите изисквания!
Новият Ви ДОМ е точно тук!
Защото с нас мечтите стават реалност!
РЕФЕРЕНТЕН 5548







