Организация Фокус представя двустаен апартамент в новострояща се жилищна сграда в квартал Коматево, град Пловдив!
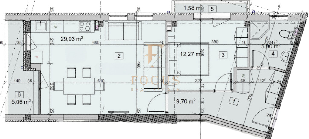
Апартаментът е с обща площ от 82,24 кв.м. със следното разпределение: хол с кухненски бокс, спалня, баня с тоалетна, склад и две тераси.
Имотът е на 2-ри етаж от общо 5.
Сградата е проектирана с идея за удобство и функционалност. Помещенията са просторни със съвременен дизайн, като има голямо разнообразие от разпределения, големина и вид на имотите. Има избор от двустайни, тристайни и четиристайни апартаменти.
Отлична локация - в близост до транспортни връзки, зони за отдих и търговски обекти, осигурявайки Ви всичко необходимо за модерен и удобен живот.
Очакван срок за въвеждане в експлоатация - 2026 г.
За повече информация не се колебайте да се свържете с нас!
Референтен номер: 47484







