Представяме двустаен апартамент за продажба в нова сграда в комплекс Sunny View Central.
С Акт 16!
Sunny View Central е комплекс от затворен тип с ваканционни имоти и множество удобства за обитателите си, разположен на отлично местоположение близо до плажовете Cacao Beach и Bedroom. Комплексът се радва на пълна заетост през летния сезон, като имотите тук се използват както за лично ползване, така и за отдаване под наем.
Комплексът се състои от 6 корпуса в 4 сгради с общо 331 апартамента с Акт 16, а в процес на изграждане е нов 8-и корпус с имоти, които се предлагат в степен на завършване 'до ключ'. Има възможност за пълно обзавеждане на имотите срещу допълнително заплащане.
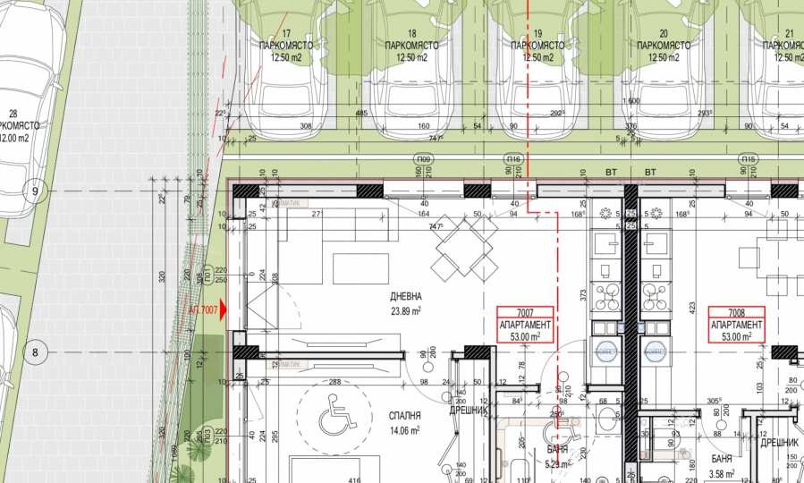
Имотът е ситуиран на ниво партер, ориентиран е на северозапад и предлага 58.92 кв.м площ. Състои се от антре, всекидневна, спалня, баня с тоалетна, тераса.
Предлага се в степен на завършване 'до ключ', както следва:
общи части /стени, подови настилки и т.н./: под - плочки, стени боя, модерни асансьори, градина от 2.5 декара;
5-камерна PVC дограма с трислоен стъклопакет;
входна врата: тип - масив от МДФ, със секретна заключалка, патрон, вътрешни врати от МДФ;
външна изолация: EPS 5 cm;
хол: стени боядисани с бял латекс, ламиниран паркет HNDF (сертификат европейски стандарт), с дебелина от 6 мм до 8 мм, цокъл;
баня и тоалетна: интериорни врати водонепроницаеми, полу секретна ключалка, напълно покрити с керамични плочки, на светли цветове; таваните са боядисани с водоустойчива бяла боя латекс;
баня: кран за топла и студена вода, тоалетна с казанче, мивка с коляно и смесител за топла и студена вода, осветление, водомер;
възможност за луксозни довършителни работи по апартамента при допълнително заплащане;
инсталации за кабелна телевизия, безжиченинтернет, СОТ, пожароизвестителна система.
Имотите в сграда 7 ще се възползват от всички удобства на вече функциониращата част.
Има възможност за закупуване или наемане на паркомясто, ...
За повече информация свържете се с нас и цитирайте референтния номер на имота. Моля, кажете, че сте видeли обявата в този сайт.
Референтен номер: SVC-127236
Тел: 0988 170 902, 02 454 13 16
Отговорен брокер:Яна Янчева
Виж всички обяви в superimotiburgas.bazar.bg или тук







