МЕСТОПОЛОЖЕНИЕ: Кварталът се намира в централната част на града и е известен със своите стари реновирани къщи, улежани улици и атмосфера, която отразява богатата история на града. Той привлича туристи и местни жители с множество кафенета, ресторанти, галерии и малки магазини.
СТРОИТЕЛСТВО: Апартаментът се намира на 8 етаж, тухла.
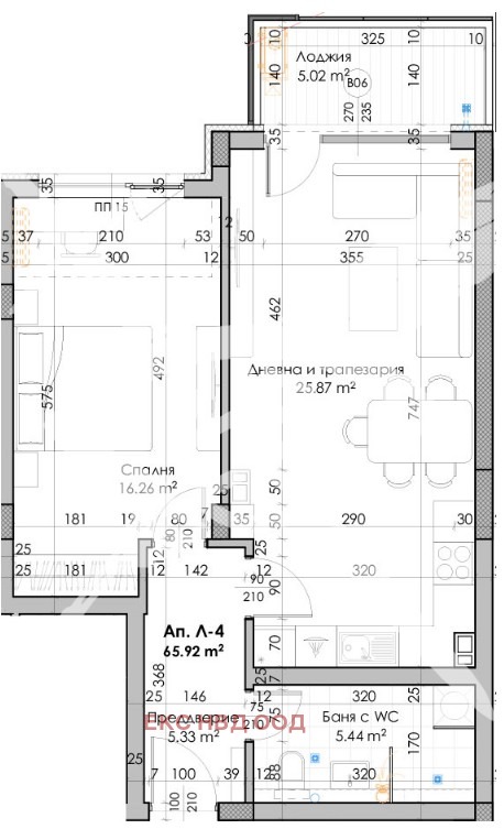
РАЗПРЕДЕЛЕНИЕ: Жилището разполага с площ от 81 кв.м. дневна с трапезария и кухненски бокс, една спалня, баня с тоалетна, лоджия.
СЪСТОЯНИЕ: В строеж.
Заповядайте да Ви го покажем. Използвайки нашите услуги Вие ще превърнете закупуването на новия си дом в едно приятно изживяване, ще получите персонален консултант, съдействие при кандидатстване за кредит от всички банки в България, интериорни дизайнери и екип, който да се погрижи за нужните документи по Вашата сделка. На Ваше разположение сме всеки ден, от понеделник до неделя от 09:00 до 20:00ч. Възползвайте се от безплатна консултация в наш офис, където ще ви спестим време и ще ви запознаем с всички актуални имоти в България, отговарящи на Вашето търсене. Свържете се с нас нужен Вие само кодът на имотът.:107-7222
Виж всички обяви в xnvd_plovdiv.bazar.bg или тук







