БЕЗ КОМИСИОНА ОТ КУПУВАЧА! NL REAL ESTATE представя на вниманието ви Директно от Инвеститора
Нова Бутикова Жилищна Сграда с 1,2 декара двор в кв. Горна Баня, квартал известен с минералните си води и най-чистия въздух в София, благодарение на уникалното взаимодействие между въздушни течения от Владайското дефиле, Бучинския проход и Сливнишкото поле, осигуряващи постоянно проветрение и препятстващи задържането на мъгли. В Горна баня се намира Италианският лицей, ЧОУ и ЧПГ Дойче шуле , 53 ОУ Николай Хрелков , ЦДГ Зорница , СБАЛ по ортопедия, като предстои и изграждането на Национална Детска Болница в района. До сградата се стига по бул. 'Цар Борис III' и 'Околовръстен път'. Новата метростанция 'Овча купел' е на пешеходно разстояние от обекта, автобусната спирка е непосредственно до него.
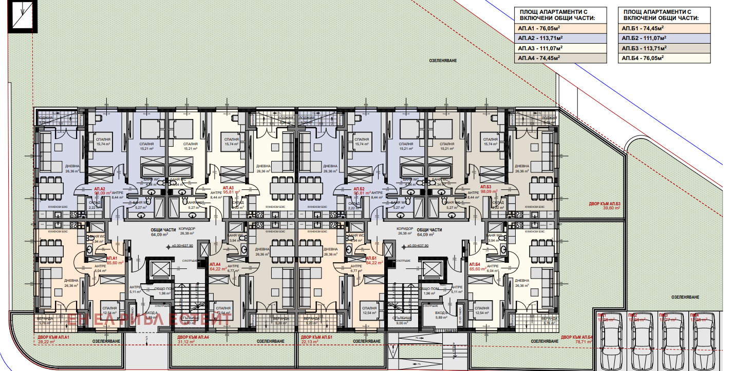
Проектът се състои от:
10 двустайни апартамента с квадратури от 74,45кв.м. до 77,83кв.м.
18 тристайни апартамента с квадратури от 103,72кв.м. до 113,71 кв.м., като цените на апартаментите са от 2380 евро на кв.м.,
и надземни паркоместа и гаражи с квадратури от 12,55 кв.м. до 13,43 кв.м., цени на паркоместата: от 30 000 евро.
Сградата се отличава с модерна визия и перфектно планирани квадратури на апартаментите, красив собствен вътрешен двор с богата растителност.
Сградата е високоефективна като съчетава множество технологии:
Материали енергийна ефективност клас А .
Големи прозорци - повече простор и слънчева светлина у дома.
Светлина и големи отстояния от околните сгради.
ИНВЕСТИТОР с над 10 годишен опит и доказано име в осъществяването на успешни проекти.
Инсталации за автоматично поливане и напояване
Алуминиева дограма с максимална енергоефективност
Асансьори - електрически.
Сигурност. Ограда за контрол на достъпа, чип система за достъп от нивото на сутерена и монтирано окабеляване за видеонаблюдение, домофонна система достъп.
Общите части завършени напълно с гранит и алуминиеви парапети.
Апартаментите се предават завършени по БДС.
Гъвкави схеми на плащане, съобразени с етапите на строителство на сградата.
За повече информация и огледи: 0888962441.



