SP Residence 2 е модерен жилищен комплекс в кв.Кършияка, Пловдив и непосредствена близост до Хотел 'Санкт Петербург. Стилният комплекс от апартаменти предлага различни по големина, изложение и разположение модерни жилища. В най-високата си част SP Residence 2 достига 18 етажа, а в по-ниската -до 11 етап,секция Б и В.
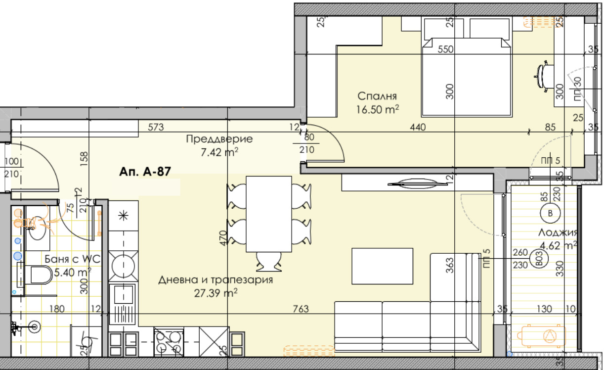
Апартаментът е с изложение изток, състоящ се от дневна с трапезария, спалня, баня с тоалетна, лоджия.
Вижте повече на www.spresidence.bg
Очакваме ви и на 0883 601 501 и 0883 301 201, както и в офиса на адрес гр. Пловдив, бул. Марица 160Б







