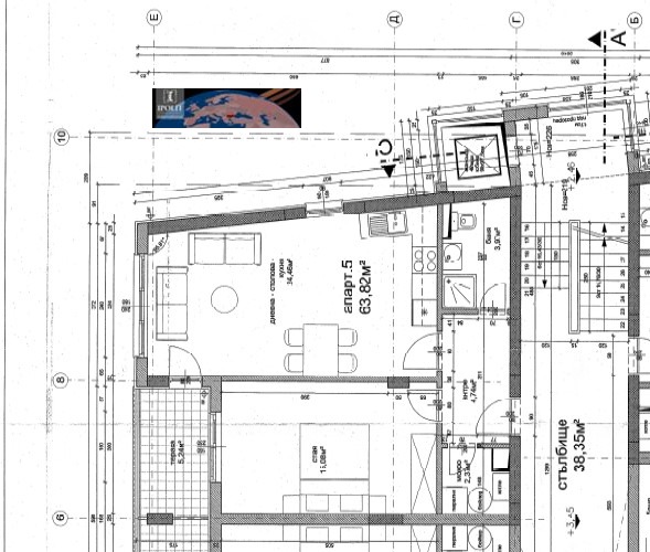
Голям двустаен апартамент на шпакловка и замазка. Разпределение: антре, спалня, просторен хол с кухненски бокс, баня с WC, голямо мокро помещение или втора баня, балкон. Изложение югозапад. Прекрасна панорама.
Възможност за закупуване на паркоместа в подземния паркинг на сградата.
До спирка на градски транспорт и супермаркет.
Огледи в удобно за клиента време. /ключ/
Виж всички обяви в ipolit.bazar.bg или тук
        
       
         
         
         
         
         
         
         
         
         
         
         
             
             
             
             
             
             
             
             
             
             
            





