Разсрочени схеми на плащане! Гарантирана цена до Акт 16!
Предлагаме Ви възможността да си закупите жилище в комплекс с чудесна локация и качество на изпълнение!
Комплексът ще бъде модерен и луксозен съобразен с всички изисквания за функционалност, удобство, безопасност и здравословна среда. Инвеститорът на проекта е утвърден на пазара и с дългогодишен опит. Строителството се извършва по стандартите и изискванията на ЕС с качествени материали. За удобство на новодомците са предвидени детски площадки, плувен басейн и търговски площи, а паркирането е обезпечено на 100% с подземни и наземни паркоместа.
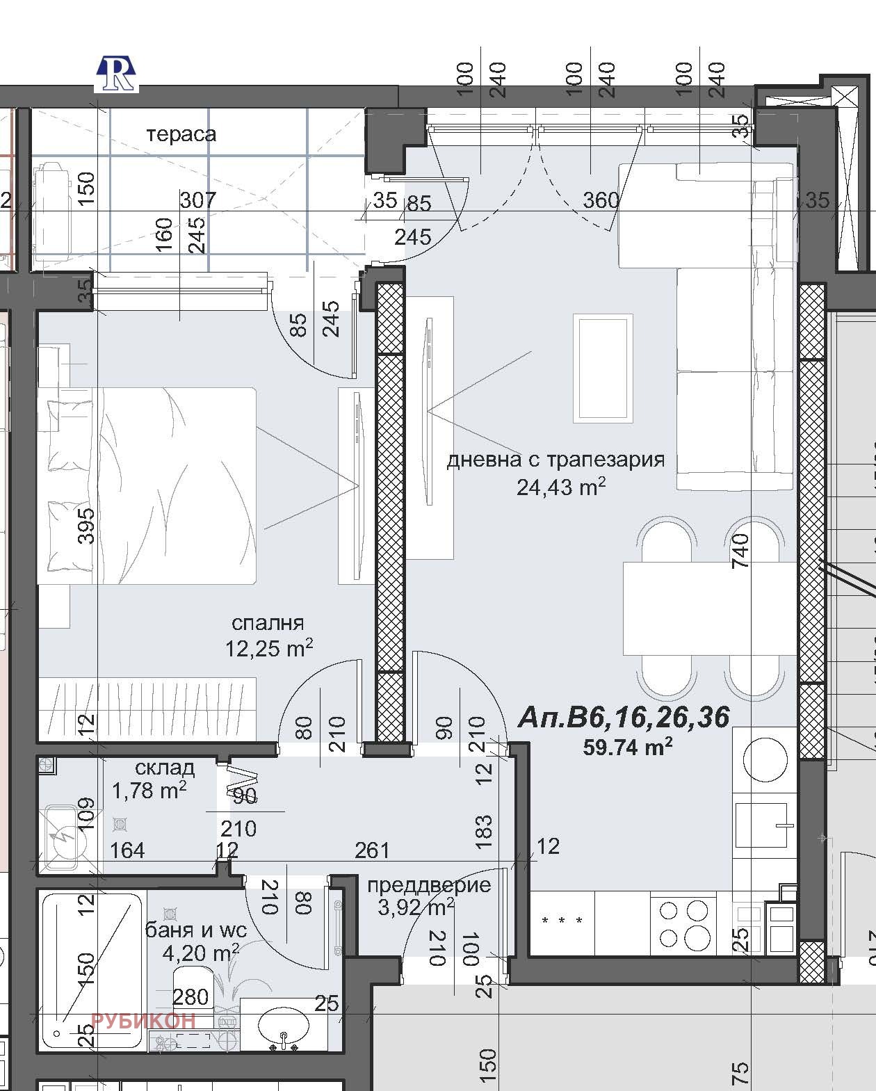
Разпределението на апартамента е както следва: просторна дневна с кухненски бокс 24.43кв.м, спалня 12.25кв.м, антре 3.92кв.м, баня с тоалетна 4.20кв.м, тераса и склад. Застроена площ 59.74кв.м. Обща площ 72кв.м. Към жилището имате възможност да закупите и паркомясто, или гараж, които се заплащат допълнително. Агенция 'Рубикон' може да ви съдейства безплатно за финансиране с кредит на вашия нов дом. За повече въпроси и информация,моля позвънете на посочения телефон. Адресът на офиса ни в Пловдив е бул. Източен 47, етаж 2, офис 7







