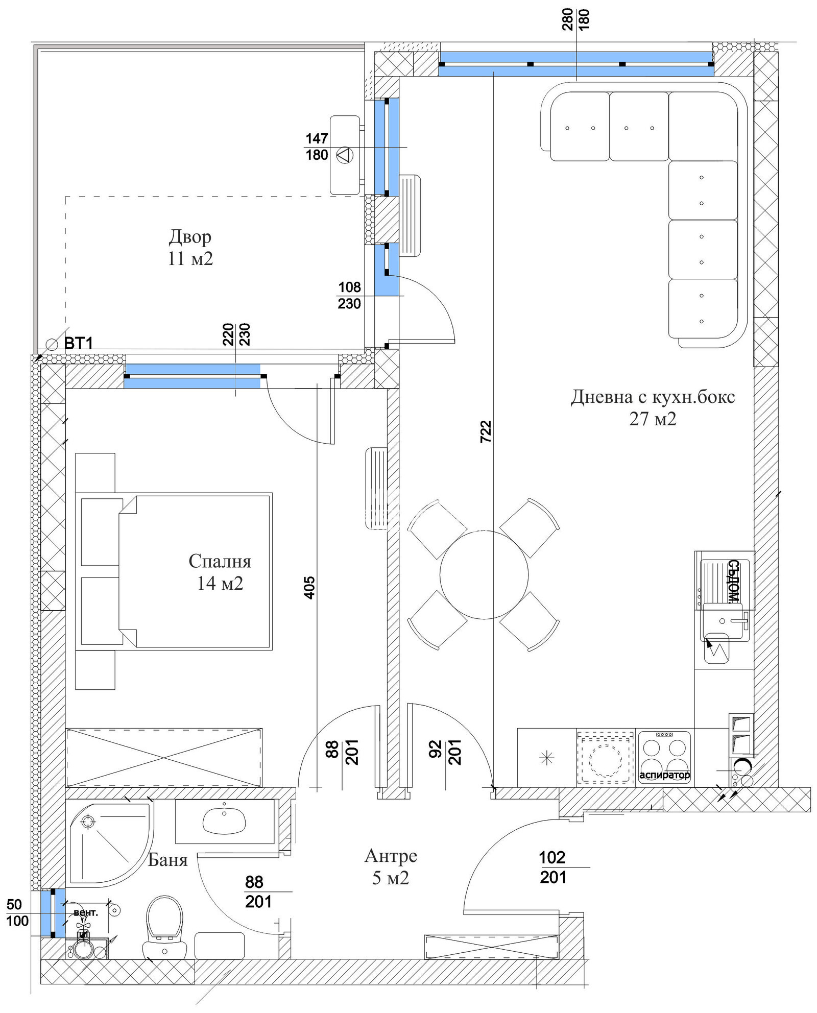
Оферта 65401: Комплексът се състои от две самостоятелни сгради - тип Фамилни къщи, намиращи се в един от най-бързо развиващите се и спокойни райони на града. Проектирани с модерна и раздвижена архитектура, създадени с идеята да осигурят максимален комфорт, лукс и удобства. Апартаментът се състои от просторна дневна - 27м2, имаща излаз на собствен двор - 11м2, една спалня - 14м2, баня с тоалетна и входно антре. Към апартамента има избено помещение, включено в цената. Жилищата са завършени с висококачествени материали, гарантиращи качество и сигурност. Сградата е изградена с Австрийски червени тухли Винербергер и е издадена в следния вид: шпакловка на стени и тавани, подове- изравнителна замазка, РVС-дограма, масивни блиндирани входни врати, просторно и светло стълбище, хидравличен асансьор, топло и хидро изолация, иноксови парапети, гранитно стълбище. В комплекса има възможност за закупуване на подземен гараж или надземно паркомясто на цена от 10000 евро. В Дворното място е предвидено парково озеленяване и детски площадки. ОСИГУРЕНО БАНКОВО ФИНАНСИРАНЕ НА ПРЕФЕРЕНЦИАЛНИ УСЛОВИЯ ЗА КЛИЕНТИ НА АГЕНЦИЯТА.
ВИЖТЕ ОЩЕ ИЗГОДНИ ОФЕРТИ НА https://www.kondorimoti.com/ С ЕЖЕДНЕВНА АКТУАЛИЗАЦИЯ!







