Translations in other languages:
All real estate ads published on imot.bg have been translated into English and published on the partner site
Получихте нова обява по филтър





Промяна на цена на наблюдавана обява


стара цена
нова цена
imot.bg – обяви за продажби и наеми на имоти
Сайт за имоти №1
Translations in other languages:
All real estate ads published on imot.bg have been translated into English and published on the partner site
ДОБАВИ ОБЯВА Редакция на обява
Начало Публикуване Търсене Нови сгради Агенции Новини Кредити + Още... Моят имот
Продава 2-СТАЕН
град Русе, Здравец Изток
Бул.Липник 106
51 000 €
99 747.33 лв.

(895 €, 1 750.47 лв./m2)
Цената е с включено ДДС
Коригирана в 13:31 на 8 октомври, 2025 год.
Обявата е посетена 2889 пъти.
Площ:
57 m2
Етаж:
2-ри от 8
Газ:
НЕ
ТEЦ:
Прокарва се
Строителство:
Тухла, Ще бъде въведен в експлоатация 2025 г.

Описание на имота:


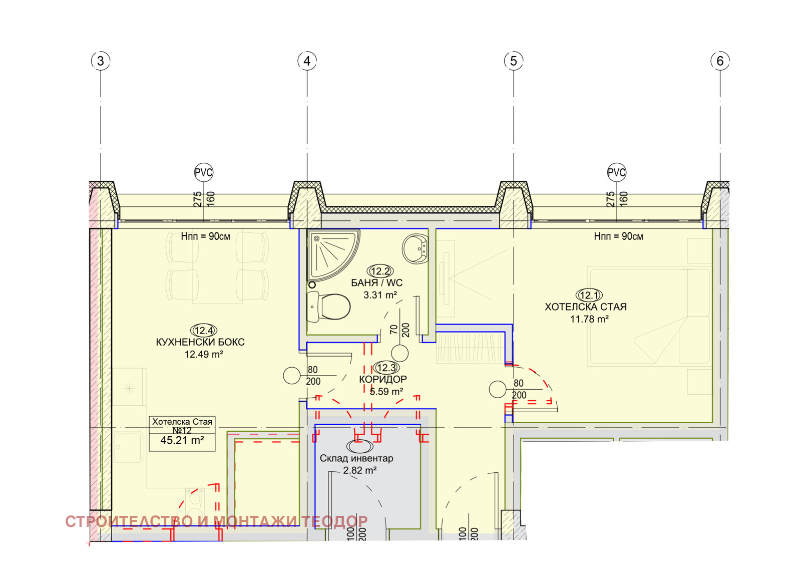
Представяме Ви новорекоструираща се сграда 'Коронел', от смесен тип , жилищна и бизнес част.Етап на строителство-пред Акт 15. Разпределението на обектите е решено както показваме в архитектурния проект.
Сградата се намира в един от най-предпочитаните райони за живеене в град Русе ,кв. Здравец-Изток.
В близост може да намерите всичко необходимо за комфортен начин на живот на съвременния човек, детски градини и училища, аптеки, бензиностанции,медицински центрове,спортни обекти и хипермаркети . Добрата локация на сградата предоставя както бързи комуникации, така и спокоен и зелен район.

Проектът е съобразен с изискванията на най-съвременните стандарти и иновативни технологии за енергийна ефективност, което осигурява на обитателите минимални разходи на енергия. Предвидено е изграждане на резервоари за дъждовна и кондензна вода, която ще се използва за напояване на озеленяването на сградата . Зелените площи са по индивидуален ландшафтен проект.

Жилищните площи са отлично проектирани ,с оптимално съотношение между простор, светлина и удобство, а общите части са луксозни ,като ще са вложени последните технологии и материали в строителството. Разполага с 9 двустайни,14 тристайни и 4 четиристайни апартамента с различно разположение и квадратури. Жилищата след въвеждане на сградата в експлоатация се предават на собствениците по БДС ,но по желание на клиента нашият строител може да извърши всички довършителни работи ,а дизайнера на компанията може да ви предложи индивидуален дизайн и обзавеждане .
Сградата предлага собствен двор с паркоместа и контрол на достъпа, важно за сигурността и удобството на живущите. Всички жилища ще предлагат тераси с естествени вертикални градини или лоджии .

Общите части ще придобият луксозни и просторни асансьори , Контролиран достъп ,чип система на всички входни точки, монтирано окабеляване за видеонаблюдение и домофонна система с вградени камери. Ще бъде подсигурена достъпна среда.

Вентилируема фасада от каширана каменно-минерална вата с пародифузна и ветрозащитна мембрана ,ESP изолации ,ефектно външно фасадно осветление и нова луксозна PVC дограма .

За да улесним процеса на придобиване на имот, предлагаме съдействие за ипотечен кредит и атрактивна схема на плащане със съотношение 50%/40%/10%. Това ви дава възможност да си осигурите своя нов дом без излишни финансови натоварвания.
Не пропускайте възможността да станете част от това ексклузивно жилищно пространство, където качеството на живот е с висок приоритет, отговаряйки и на най-изисканите критерии!

ЗА СТРОИТЕЛЯ :'Строителство и монтажи Теодор Стоев ЕООД' и 'STOEV BAU' със собственик Теодор Стоев са изпитани във времето строителни компании с над петнадесет годишен опит ,както в Германия ,така и в България ,одобрена с немски и европейски сертификати за качество .През 2022 година българската компания,, Строителство и монтажи Теодор Стоев започва работа по реконструкцията и промяната предназначение от хотел в жилищна и търговска сграда на хотел 'Балкан' в град Габрово ,който беше завършен през 2023.От януари до юли работи по реконструкцията и преустройството на хотел 'Хил' в град София в ДКЦ 'Черни връх' и хоспис 'Медхоум' ,от август 2023 до януари 2024 извършва изграждане на ново крило в медицинска очна клиника 'Ресбиомед' град София .Също така през 2023 участва в обществени поръчки към БДЖ за изграждане влакови спирки и започва реконструкцията и преустройството на хотел 'Янтра' град Габрово .

Директни Продажби от инвеститор , без такси и комисионни чрез нашия партньор фирма 'Ерфолг Дом' и други брокерски агенции.

'Ерфолг Дом'
Лице за контакти: Кремена Стоева
Телефон : 0883 772 770
Имейл: [email protected]
www.coronel.bg

Цени от 699 /м2 без ДДС
2-,3- и 4-стайни апартаменти
* Избор на етаж и изложение
Офиси
Складове
Магазини
Заведения
Лекарски кабинети или Праксиси
Салони за красота
Паркоместа
Виж всички обяви в teodorstoev.bazar.bg или тук
Особености
Тухла
Асансьор
С паркинг
Интернет връзка
Видео наблюдение
Контрол на достъпа
Саниран
В затворен комплекс
За контакт:
0885113244
Строителна фирма:
СТРОИТЕЛСТВО И МОНТАЖИ ТЕОДОР СТОЕВ ЕООД
0885113244
В imot.bg от 2024 г.
Адрес:
област Русе, гр. Русе, Бул. Липник 106
http://www.stoev-bau.de
ИЗПРАТИ ЗАПИТВАНЕ
ИЗПРАТИ ЗАПИТВАНЕТО

Продава 2-СТАЕН
град Русе, Здравец Изток
Бул.Липник 106
Обява: 1b172725538332369

51 000 €
99 747.33 лв.
(895 €, 1 750.47 лв./m2)

Цената е с включено ДДС
ЗАПАЗИ ОБЯВАТА

Местоположение: град Русе, Здравец Изток, Бул.Липник 106

Виж още имоти от Русе или още Двустайни Апартаменти в Русе
Допълнителни данни за имотите в района и сравнение с други райони: Търсене в АРХИВ 2013 - 2025 г.











Добави/редактирай
вид имот и район
*Средните цени са определени чрез медиана стойност.
КОНТАКТИ | SMS КОДОВЕ | СТАТИСТИКА | ПОМОЩ | ОБЩИ УСЛОВИЯ | РЕКЛАМА | ТОП ОФЕРТА | Въпроси и предложения към imot.bg
Резон Медия | Имоти | Автомобили | Работа | Новини | Обяви | Преводи и легализация 2002-2025 ® Copyright imot.bg
© imot.bg ползва и препоръчва хостинг услугите на Bulinfo.net
Следвайте ни в: