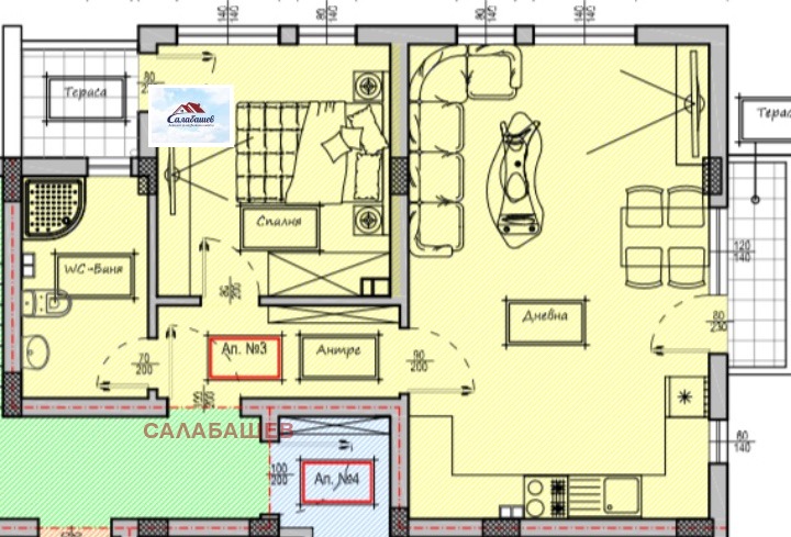
Агенция Салабашев предлага двустаен апартамент ново строителство в град Пазарджик, квартал Стадиона, в близост до парк Стадиона. Жилището е с площ от 76.88 кв.м. с общите части и се състои от всекидневна с кухня и тераса, спалня с тераса, входно антре и баня с тоалетна. Апартаментът се издава на степен на завършеност: стени и тавани гипсова мазилка; под циментова замазка; стени в санитарни помещения вароциментова мазилка; под тераси мразоустойчив гранитогрес; ВиК на тапа; ЕЛ инсталации осветление, оптична връзка за цифрова телевизия и интернет, домофона инсталация, мълниезащита и заземителна инсталация, заготовка за климатици; дограма 5-камерна PVC дограма с високи изолационни показатели за ниски енергийни разходи клас А, стъклопакет двоен с общ габарит 28 мм 6 мм четири сезона + бяло 4 мм с аргонов газ поставен в стъклопакета и входна блиндирана врата. Жилището се намира на първи етаж в четириетажна тухлена кооперация с луксозен асансьор. Към апартамента има склад.







