🌟 Свободни двустайни и тристайни апартаменти с панорамна гледка! 🌟
🏙 На последен етаж с лична тераса за релакс и невероятен изглед към града, езерото или морето.
🏡 Апартаменти в различни входове, с различно изложение според вашите предпочитания.
📑 Сградата е пред Акт 15 строителството върви по план.
💦 Комплекс с 5 басейна и СПА център с минерална вода.
🚗 Паркиране на 3 подземни нива.
📅 Завършване юни 2026 г.
💰 Разсрочено плащане.
❌ Без комисион директно от инвеститор!
👉 Ексклузивно само с Имоти България.
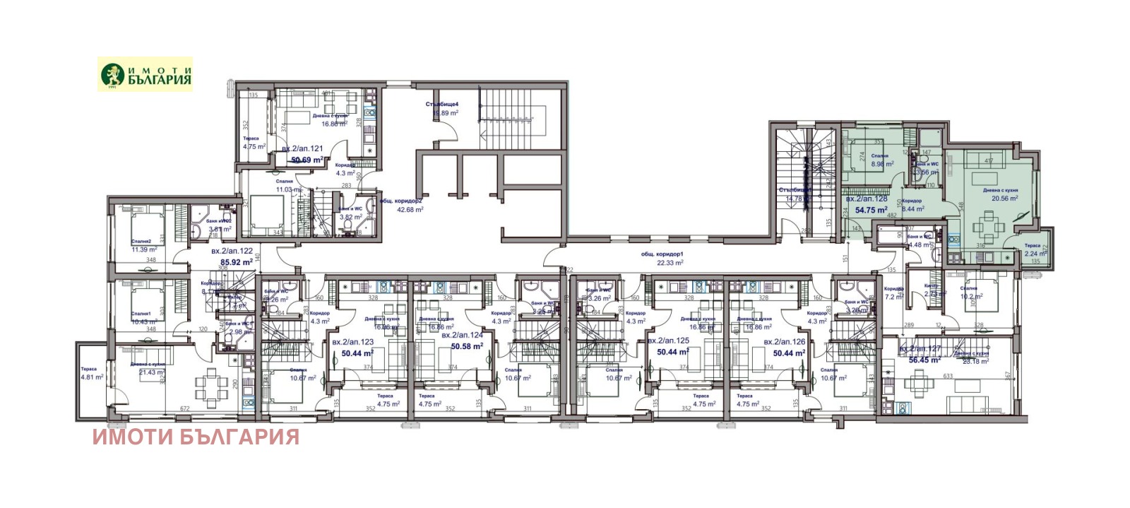
🏠 Един от свободните апартаменти:
Ап. 128 във вход 2, на ет. 16 и 17
Двустаен апартамент с обща площ 148.17 кв.м
Жилищна част: коридор, дневна с кухня, спалня, тераса, баня-тоалет -68.36 кв.м. чиста площ, стълбище към покривната тераса.
Прилежаща покривна тераса на ет.17 с размер 55.36 кв.м.
Снимките в обявата са общи от комплекса, схемата е на конкретния апартамент.
📩 Свържете се с нас за актуална информация за всички свободни апартаменти на тел. 0889 660 000
🔑 Изберете своето жилище в комплекс Дом Младост : https://dommladost.bg/







