НОВА СГРАДА С МОДЕРНА ВИЗИЯ !!! РАЗСРОЧЕНО ПЛАЩАНЕ !!! ОТЛИЧНА ЛОКАЦИЯ !!!
Нова Хоум Ви предлага за продажба двустаен апартамент в малка новострояща се бутикова сграда с площ 70 кв.м. в ж.к. Бриз.
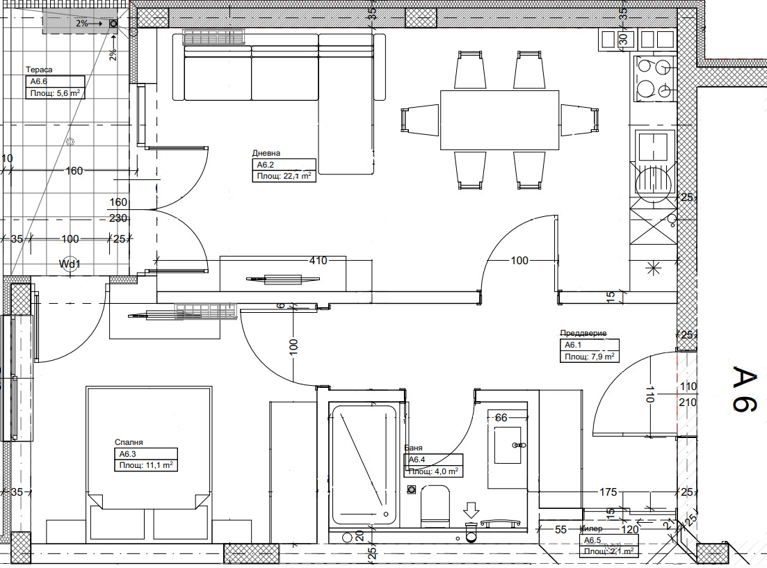
Апартаментът се намира на първи етаж и се състой от - от входно антре 7,9 кв.м., просторен дневен тракт с кухненски кът 22 кв.м. с излаз на тераса 5,6 кв.м., спалня 11 кв.м., баня с тоалетна 4 кв.м. и килер.
Нов проект в малка бутикова сграда с прекрасна панорама към морето и града. Сградата е ситуирана изцяло на югоизток с френски панорамни прозорци, които гарантират много слънце и топлина през целият ден.
Жилището се продава по БДС с монтирана входна врата, изградени ВиК и ел. инсталации.
Към имота има възможност за закупуване на паркомясто или гараж.
Предвидено завършване 05.2026 год.
Имотът е подходящ както за живеене така и за инвестиция, поради непосредствената си близост до главни пътни артерии, автобусни спирки, големи супермаркети, детски градини и училища.
Нова Хоум съдейства на своите клиенти до нотариалното изповядване на сделката, за отпускане на кредит с преференциални условия към всички водещи банки на пазара, както и за ремонтни и довършителни дейности /завършване до ключ/ на преференциални цени.
За повече информация, коментари и огледи: Живко Желязков 0894 34 72 52 (телефон от 8:30 до 21:30), (viber и whatsapp +359894 34 72 52 денонощно).
За да разгледате още актуални оферти в гр.Варна, можете да посетите сайта на агенцията - www.novahome.bg







