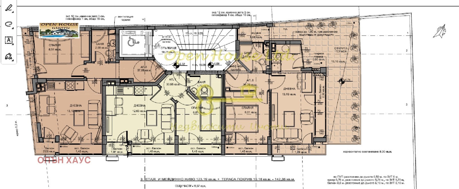
Сградата е на 7 етажа с асансьор,с по 2 или 3 апартамента на етаж с добри изложения.
Предлаганият апартамент е разположен на етаж 3,с изложение - югоизток/североизток.
Състои се от: входно антре,дневен тракт,спалня,баня-тоалет и 2 тераси.
Жилището ще бъде издадено на етап - БДС.
В сградата предлагаме и други тристайни и двустайни апартаменти с гъвкава схема на плащане.
За контакт: Жечка Христова - тел.0888430914
Виж всички обяви в openhouse.bazar.bg или тук
        
       
         
         
         
         
             
             
             
            






