Оферта 61967:Представяме Ви нов проект вдъхновен от най-добрите имоти на европейския пазар, представляващ комбинация между удобно разположен дом ,качествено строителство и зелени пространства.
СПЕЦИАЛНО ПРЕДЛОЖЕНИЕ- сгради с нисък % общи части. Нов, модерен проект представляващ две жилищни сгради в един общ ограден двор и много зелени площи.
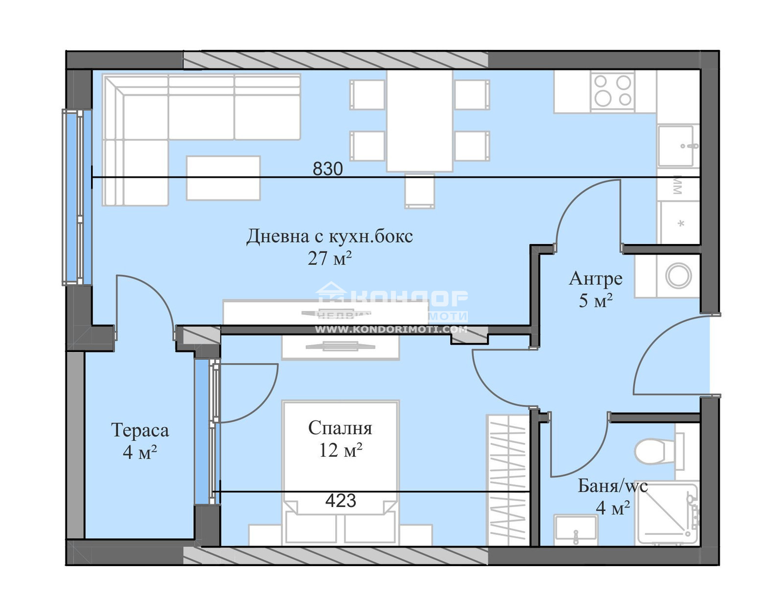
Разпределения - Просторни и много функционални апартаменти с просторни стаи и гледка към Стара планина, а също и с партерни жилища с двор и такива с големи панорамни тераси. Апартаментът, който Ви предлагаме се състои от дневна 27кв.м. с кухненски бокс и трапезария и излаз на обща тераса, една самостоятелна спалня 12кв.м., баня с тоалетна и широко входно антре с място за перално.
Материали - Жилищната сграда е изградена съгласно най-високите технологични изисквания за качество и лукс. Използваните материали са съобразени с най-новите тенденции в строителството - модерна външна облицовка, покривна и фасадна изолация, PVC пет камерна дограма и др. Луксозните общи части фотоклетки и безшумен асансьор, допринасят допълнително за усещането за лукс и комфорт на обитателите.
За удобството на своите собственици, сградата разполага с гаражи и паркоместа. Проектът е предназначен за модерния забързан човек търсещ удобствата на града ,но в тиха и спокойна среда далеч от шума и мръсния въздух.
ВИЖТЕ ОЩЕ ИЗГОДНИ ОФЕРТИ НА https://www.kondorimoti.com/ С ЕЖЕДНЕВНА АКТУАЛИЗАЦИЯ!







