РИМЕКС ИМОТИ -за имоти в София ни потърсете на 0887 600 555
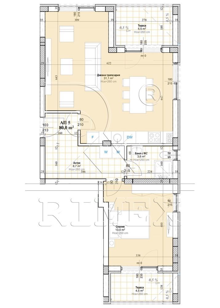
Оферта 81491 - Област Пловдив, с. Марково, Уникален 2-стаен апартамент в малка луксозна сграда, на ет. 2 от 4. Жилището се състои от: просторно антре, обширна всекиденвна с кухненски кът и излаз на тераса с панорамна гледка; уютна спалня с втора тераса с панорамна гледка, санитарен възел. Всички помещения са просторни и светли. Сградата разполага с входно фоайе и асансьор, както и със собствен озеленен двор от 700 кв.м., където собствениците могат да организират пространството по свой избор - място за отдих, барбекю, детска площадка и др. Има опция за закупуване на гараж или паркомясто. Имотът е перфектно съчетание на удобствата на градска инфраструктура със спокойствието и чистия въздух на Родопите. Условията на плащане се договарят индивидуално с всеки клиент. Сградата има АКТ 14. Очаквано приключване и АКТ 16 през м. септември 2024год.
Цена: 103 300 евро







