Translations in other languages:
All real estate ads published on imot.bg have been translated into English and published on the partner site
Получихте нова обява по филтър





Промяна на цена на наблюдавана обява


стара цена
нова цена
imot.bg – обяви за продажби и наеми на имоти
Сайт за имоти №1
Translations in other languages:
All real estate ads published on imot.bg have been translated into English and published on the partner site
ДОБАВИ ОБЯВА Редакция на обява
Начало Публикуване Търсене Нови сгради Агенции Новини Кредити + Още... Моят имот
Продава 2-СТАЕН
град Варна, Окръжна болница-Генерали
127 738 €
249 833.81 лв.

(1 681 €, 3 287.75 лв./m2)
Цената е с включено ДДС
История на цената
Коригирана в 17:21 на 27 септември, 2024 год.
Обявата е посетена 1946 пъти.
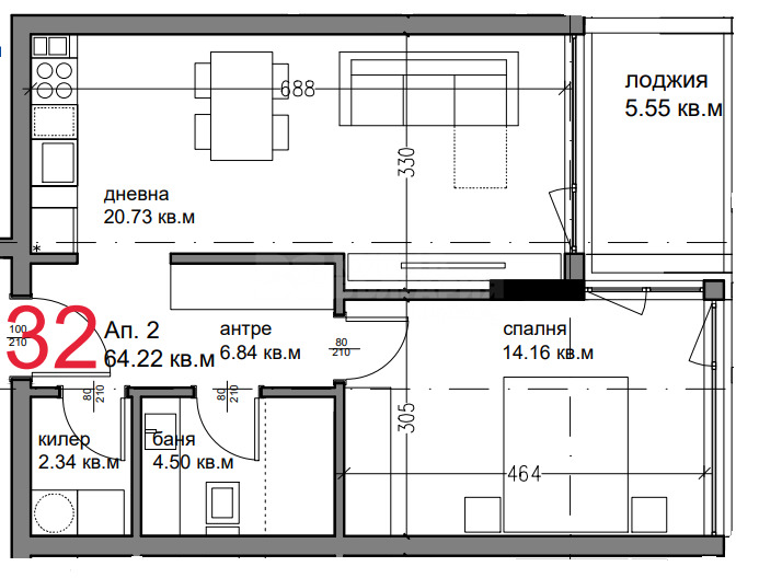
Площ:
76 m2
Етаж:
10-ти от 10
Строителство:
Тухла, 2026 г.

Описание на имота:


Компания за недвижими имоти "Купи в България" има удоволствието да Ви предложи апартаменти и търговски площи в една от бъдещите емблематични сгради на град Варна.За проекта:Мултифункционална сграда на 10 етажа с 5 входа, като на първите четири етажа ще са разположени търговски обекти и над тях жилищна част с двустайни и тристайни апартаменти. Петте подземни нива ще обезпечат нуждата от места за паркиране. Проектирането е дело на утвърдено студио, носител на множество награди и номинации на местно и международно ниво.За изпълнението са заложени иновативни строителни технологии, висок клас материали, най-новите системи за енергоефективност, контрол на топлината и вентилацията, високоскоростни асансьори и интегрирано лед осветление по фасадата със светлинен дизайн през тъмните часове.Заложеният срок за завършване е краят на 2026-та година.Локация:Местоположението е изключително благоприятно от гледна точка на съвременен начин на живот и покриви всички потребности на бъдещите домакинства. В близост са разположени училища, детски градини, автобусни спирки, хранителни магазини, Окръжна болница, медицински центрове, аптеки, различни по вид търговски обекти, както и пешеходно разстояние до Морска градина и централна част на града.Апартаменти:Предлаганите апартаменти с по една и две спални, с различни изложения и квадратури, които могат да удовлетворят различни нужди на бъдещите собственици.Подземен паркинг:Възможност за избиране между единични и двойни паркоместа, както и единични, двойни и тройни гаражи.За повече информация, моля свържете с нас на посочените телефони!"Купи в България" предоставя безплатно консултиране и съдействие при необходимост от банково финансиране за покупка на недвижим имот.
Виж всички обяви в kupivbg.bazar.bg или тук
Особености
Тухла
Асансьор
С паркинг
С гараж
За контакт:
052 630 830

Този имот се предлага само на частни лица
Агенция:
КУПИ В БЪЛГАРИЯ
052 630 830
КУПИ В БЪЛГАРИЯ logo
Медал за прослужено време
В imot.bg от 2013 г.
kupivbg.imot.bg
Адрес:
област Варна, гр. Варна, ул. Акад. Андрей Сахаров 19
http://www.kupiv.bg
ИЗПРАТИ ЗАПИТВАНЕ
ИЗПРАТИ ЗАПИТВАНЕТО

Продава 2-СТАЕН
град Варна, Окръжна болница-Генерали
Обява: 1b171317049885242

127 738 €
249 833.81 лв.
История на цената
(1 681 €, 3 287.75 лв./m2)

Цената е с включено ДДС
ЗАПАЗИ ОБЯВАТА

Местоположение: град Варна, Окръжна болница-Генерали

Виж още имоти от Варна или още Двустайни Апартаменти във Варна
Допълнителни данни за имотите в района и сравнение с други райони: Търсене в АРХИВ 2013 - 2025 г.











Добави/редактирай
вид имот и район
*Средните цени са определени чрез медиана стойност.
Още обяви в imot.bg
КОНТАКТИ | SMS КОДОВЕ | СТАТИСТИКА | ПОМОЩ | ОБЩИ УСЛОВИЯ | РЕКЛАМА | ТОП ОФЕРТА | Въпроси и предложения към imot.bg
Резон Медия | Имоти | Автомобили | Работа | Новини | Обяви | Преводи и легализация 2002-2025 ® Copyright imot.bg
© imot.bg ползва и препоръчва хостинг услугите на Bulinfo.net
Следвайте ни в: