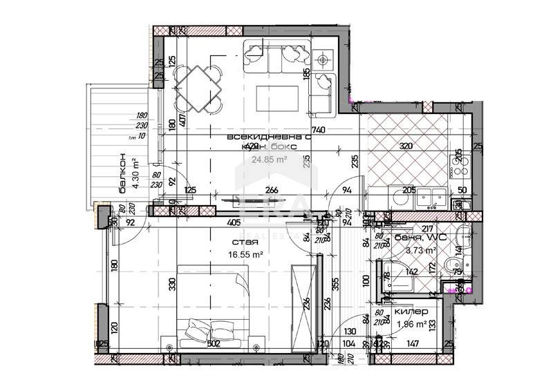
Ера Лайф обявява за продажба двустаен апартамент с площ 78.36 м2, разположен на пети жилищен етаж от осемнадесет в сграда, която предстои да бъде построена под стадион 'Младост' във варненския квартал Младост II. Имотът се състои от: входно антре, спалня (16,55) м2, дневен тракт с кухненски бокс (24,85) м2, килер (1,96) м2, комбиниран санитарен възел (3.73) м2, излаз на лоджия (4,30) м2 от всички стаи. Статут на имота: апартамент.
Жилището ще бъде завършено по БДС стандарт - на шпакловка и замазка, с поставена ПВЦ дограма и входна блиндирана врата. Отоплението ще е на ток. Продава се без обзавеждане. Паркирането ще бъде свободно или подземни и надземни гаражи и паркоместа.
Уникална сграда, с панорамен изглед към целия град. Издадено разрешение за строеж. Срок на изпълнение на сградата 36 месеца.
Стратегическа локация на бъдещата сграда. Отлична инфраструктура на района - в близост до голям медицински комплекс, стадион 'Младост', големи хранителни вериги 'Кауфланд' и 'Лидъл', СОУ 'Гео Милев', детски градини, автобусни линии 14, 48. Код: 0705673
Оферта 0705673







