Компания X представя на Вашето внимание двустаен апартамент в кв.Кършияка.
МЕСТОПОЛОЖЕНИЕ:Кварталът предлага разнообразие от жилищни сгради, както и търговски обекти и услуги, които удовлетворяват нуждите на местните жители. В близост до Кършияка се намират и значими исторически и културни забележителности на града, което го прави атрактивно място за живеене и посещение.
СТРОИТЕЛСТВО: Апартаментът се намира на 12 етаж , тухла.
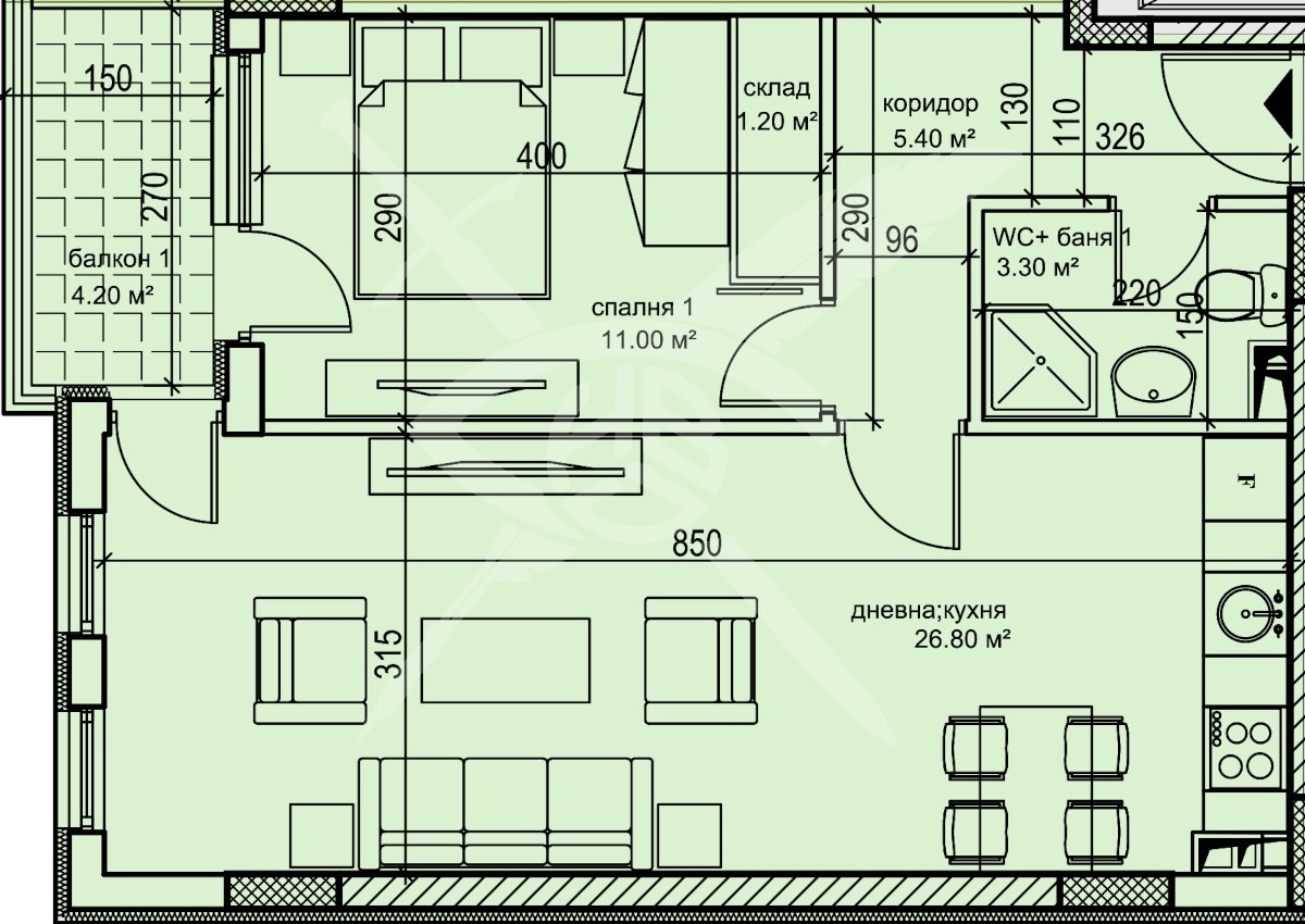
РАЗПРЕДЕЛЕНИЕ: Жилището разполага с площ от 71 кв.м. разпределена в дневна с трапезария и кухненски бокс, спалня , баня с тоалетна, тераса.
СЪСТОЯНИЕ: В строеж.
Заповядайте да Ви го покажем. Използвайки нашите услуги Вие ще превърнете закупуването на новия си дом в едно приятно изживяване, ще получите персонален консултант, съдействие при кандидатстване за кредит от всички банки в България, интериорни дизайнери и екип, който да се погрижи за нужните документи по Вашата сделка. На Ваше разположение сме всеки ден, от понеделник до неделя от 09:00 до 20:00ч. Възползвайте се от безплатна консултация в наш офис, където ще ви спестим време и ще ви запознаем с всички актуални имоти в България, отговарящи на Вашето търсене. Свържете се с нас на 0887779990 /на цената на един градски разговор/ или на 0884060990 и цитирайте кода към имота:204-19738







