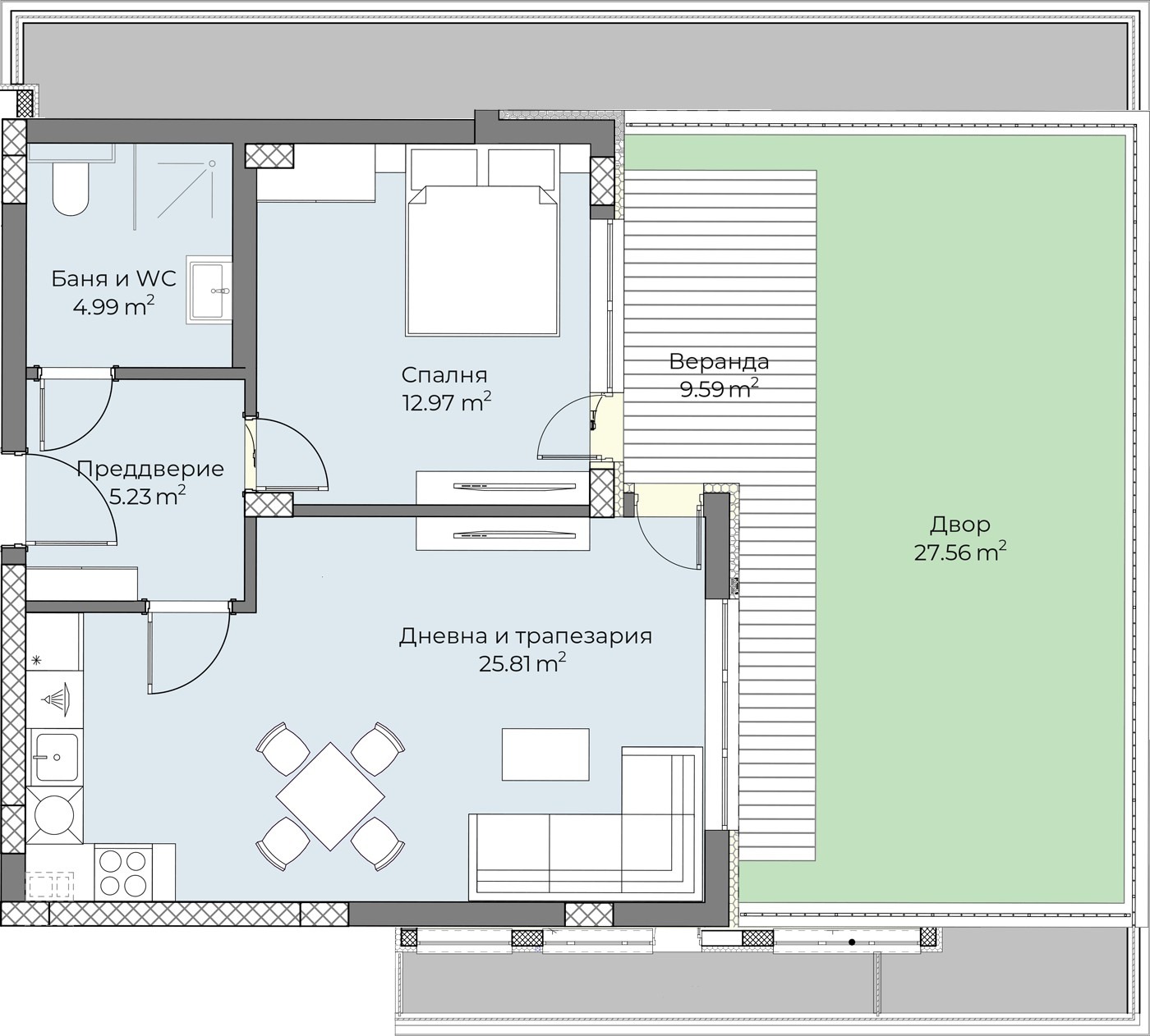
- коридор
- хол с кухненски бокс
- непреходна спалня
- баня с тоалетна
-тераса
Апартаментът се продава в степен на завършеност БДС:
- под циментова замазка
- стени гипсова мазилка
- тавани гипсова мазилка
- външна блиндирана врата
- дограма - ПВЦ
- изградени до точка ОВ
- електрическа и ВИК инсталации
Изпълнението на сградата е по традиционен монолитен начин - със стоманобетонни колони, плочи и греди. Фасадните стени са трислойни - вътрешен слой от тухлена зидария, външен и среден. Фасадата е с характерен архитектурен образ. Сградата ще бъде завършена с луксозни общи части и хидравличен асансьор.
В близост до сградата има автобусна спирка и градски транспорт. Районът се характеризира още с наличие на детска градина, училище. В допълнение, за комфорт и развлечение на ваше разположение наблизо ще намерите ресторанти, супермаркети и др.
Можем да организираме оглед на имота в удобно за вас време. Свържете се с нас и кажете кога бихте искали да направите оглед. След огледа, имотът може да бъде резервиран със заплащане на депозит, след което се прекратяват огледи с други купувачи и започва подготовка на документите за сключване на предварителен и окончателен договор. Услугите, които предлага нашата фирма са - Безплатни юридически консултации, съдействие при одобрение на ипотечен, потребителски и всякакъв друг кредит, при възможно най-добри условия за клиента. Работим с всички банки. Безплатни огледи. За Контакти: Димитър Ветин 0896338198
Виж всички обяви в lidera.bazar.bg или тук
        
       
         
         
         
         
         
             
             
             
             
            






