ИМОТ НА МОРЕТО продава ДВУСТАЕН АПАРТАМЕНТ в новострояща се бутикова четириетажна жилищна сграда, в гр. Царево, местността Белия бряг .
Сградата се отличава с модерна архитектура в средиземноморски стил, откъдето се откриват красиви гледки към залива между стария и новия град, Храм Свето Успение Богородично и кв. Василико .
Сградата разполага с асансьор, 14 жилища и 23 паркоместа.
За строежа на сградата са предвидени висок клас материали, гарантиращи висококачествено изпълнение: Тухли Wienerberger Австрия, дограма Aluplast Германия, мазилки и фасадна топлоизолация Baumit, Фасаден HPL FunderMax Австрия.
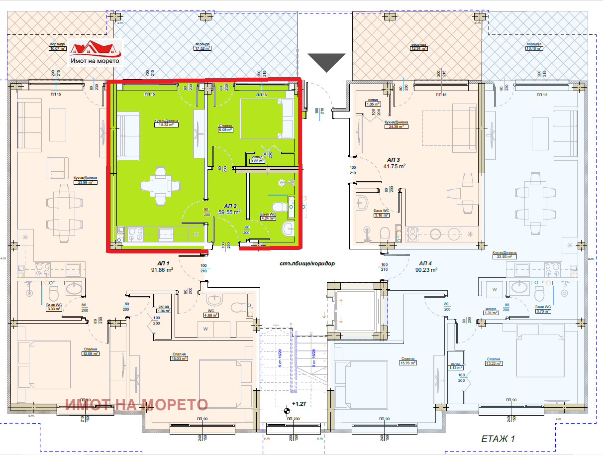
Жилището е с площ 66,4 кв.м, разположено на етаж 1, със следното разпределение: входно антре, дневна с кухненски бокс, спалня, санитарен възел, тераса .
Възможност за закупуване на паркомясто с цени от 9 000 до 10 000евро!
Пред АКТ 16!
Виж всички обяви в imotnamoreto.bazar.bg или тук
        
       
         
         
         
         
         
         
         
             
             
             
             
             
             
            






